Реєстрація /

Оренда Офіс вул. В.Житомирська 20 в Києві / W-7447378

Комерційна нерухомість
Ціна:
619 000* грн.
/місяць
$
14 000 $ (1$ = 44.2 грн.)
11 900 € (1€ = 51.95 грн.)
Житловий комплекс:
Профіль:
Площа:
700 м²
Ціна за м²:
884 грн.
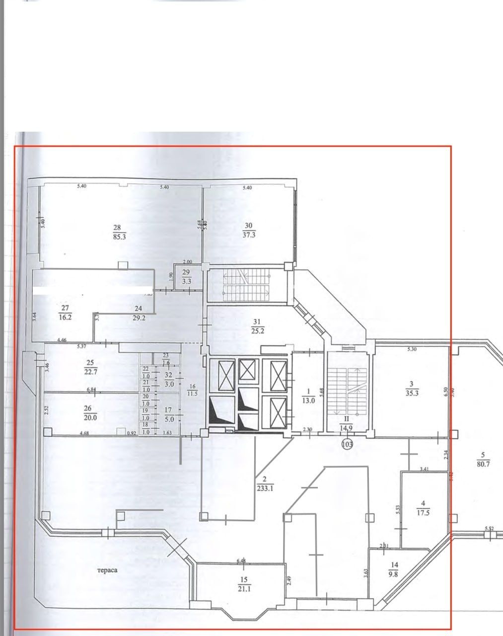
Оренда офісу 709 кв.м, в центрі Міста. Шевченківський район. Шевченківський р-н, станція метро Золоті Ворота вул. Велика Житомирська Оренда офісу в бізнес-центрі класа В. Планування: 1 зал опен-спейс, 5 окремих кабінетів, 1 переговорна кімната, кухня, 2 CW. Стан – з ремонтом. Офіс оснащений центральною системою кондиціювання, пропускною системою. Вакантність: 8 поверх: 709 кв.м. Комерційні умови: Орендна ставка – $20 кв.м без ПДВ. Експлуатаційні витрати входять в вартість оренди! Загальна вартість оренди з OPEX та ПДВ $17 014 в місяць. Комунальні платежі – додатково
Завантажити .pdf

Посередник

Юрій

Оновлено: 13 Травня 2026
Код об'єкта: W-7447378
CAPTCHA Фото Капча
Введіть символи, зображені на малюнку.

Поскаржитися на оголошення

W-7447378 |

Вкажіть причину скарги

Максимальна кількість символів 500
CAPTCHA Фото Капча
Введіть символи, зображені на малюнку.

Схожі оголошення