Реєстрація /

Оренда Офіс вул. Бульварно-Кудрявська (Воровського) 22 в Києві / W-7444281

Комерційна нерухомість
Ціна:
636 000* грн.
/місяць
$
14 400 $ (1$ = 44.2 грн.)
12 300 € (1€ = 51.95 грн.)
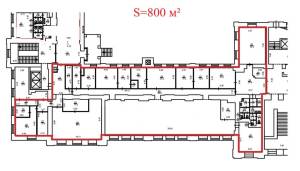
Оренда офісу в  Бізнес-центр «Ренесанс» вул. Бульварно-Кудрявська 22-24 Вакантна площа: 800 м² (1-й поверх) Зручна транспортна розв’язка — щоденна продуктивність гарантована! Переваги локації: • Поруч посольства, ТЦ «Україна», готелі, ресторани, банки • Зручний доступ з усіх районів міста  • Активний пішохідний трафік  Технічне оснащення: • Трансформаторна підстанція (2 х 630 кВт)️ • Оптоволоконний інтернет , HVAC • Безпека: сигналізація , відеоспостереження , охорона 24/7  Комфорт і зручність в самому серці столиці! Орендна ставка: 18 у.о./м² (з ПДВ та OPEX). Комунальні платежі — за фактом споживання
Завантажити .pdf

Посередник

Юрій

Оновлено: 13 Травня 2026
Код об'єкта: W-7444281
CAPTCHA Фото Капча
Введіть символи, зображені на малюнку.

Поскаржитися на оголошення

W-7444281 |

Вкажіть причину скарги

Максимальна кількість символів 500
CAPTCHA Фото Капча
Введіть символи, зображені на малюнку.

Схожі оголошення