Реєстрація /

Оренда Офіс вул. Січових Стрільців (Артема) 44 в Києві / W-7446824

Комерційна нерухомість
Ціна:
289 000* грн.
/місяць
$
6 500 $ (1$ = 44.42 грн.)
5 560 € (1€ = 51.95 грн.)
Профіль:
Площа:
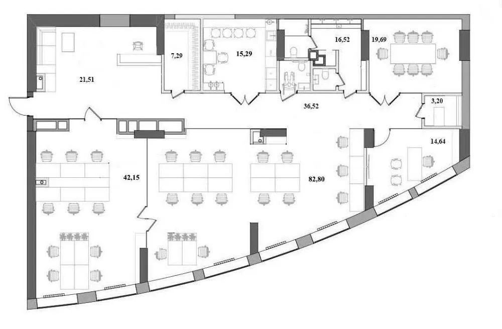
250 м²
Ціна за м²:
1 150 грн.
Здам офіс 250 кв.м. з ремонтом та меблями. Січових Стрільців вул. 44А, Шевченківський р-н., центр Києва. Нежитловий фонд, 2 поверх, Сучасний ЖК «А-52» 2020 року Оpen space 125 кв.м., кабінет керівника, переговорні кімнати, кухня, 3 санвузли (в т.ч. з душовою), гардеробна, ресепшн. Себлі на 25 робочих місць Система центрального кондиціонування. Охайна вхідна група, консьєрж сервіс, доступ 24/7. В будинку є підземний паркінг, та облаштоване укриття. 15 хвилин до метро Лук’янівська та метро Золоті ворота. 6500дол
Завантажити .pdf

Посередник

Юрій

Оновлено: 29 Травня 2026
Код об'єкта: W-7446824
CAPTCHA Фото Капча
Введіть символи, зображені на малюнку.

Поскаржитися на оголошення

W-7446824 |

Вкажіть причину скарги

Максимальна кількість символів 500
CAPTCHA Фото Капча
Введіть символи, зображені на малюнку.

Схожі оголошення