Реєстрація /

Оренда Офіс Киянівський пров. 3 в Києві / W-7447461

Комерційна нерухомість
Ціна:
267 000* грн.
/місяць
$
6 000 $ (1$ = 44.45 грн.)
5 090 € (1€ = 52.45 грн.)
Профіль:
Площа:
400 м²
Ціна за м²:
666 грн.
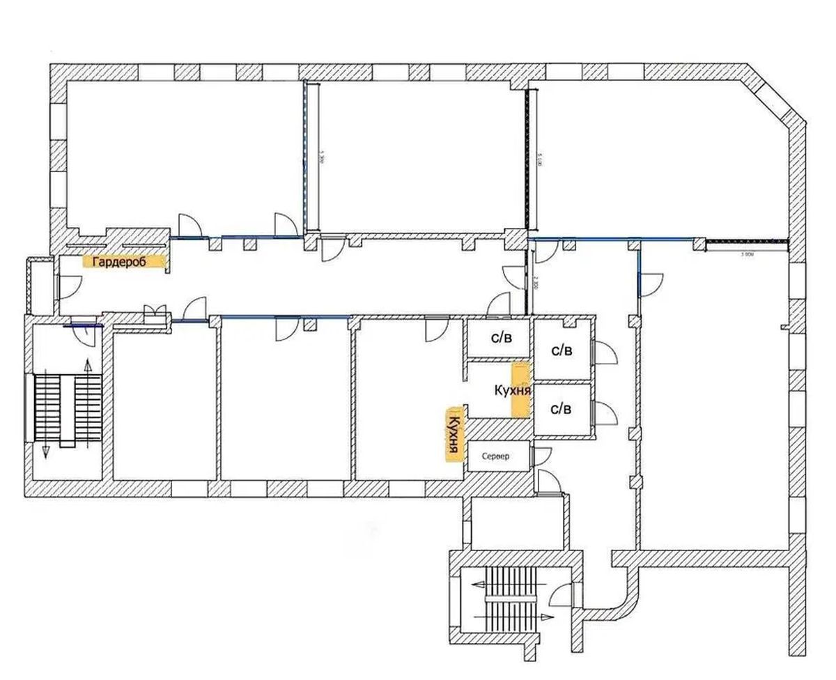
Здам офіс 380 кв.м. Електрика 24/7. не вимикають. центр Києва, Киянівський провулок 3-7, поруч Львівська площа, метро Золоті ворота. Сучасний дизайнерський ремонт. 3/4 поверх бізнес центру, 2 вхідні групи з різних сторін. Планування: 4 open space, кабінет, кімната перемовин, кухня, 3 санвузли, серверна. Офіс оснащено системами: центрального кондиціювання, припливної вентиляції, пожежною та охоронною сигналізаціями, відеоспостереженням. Прибудинкова територія під охороною та відео наглядом, є місця для паркування авто. 6000дол+к.п. 50% комісія
Завантажити .pdf

Посередник

Юрій

Оновлено: 21 Квітня 2026
Код об'єкта: W-7447461
CAPTCHA Фото Капча
Введіть символи, зображені на малюнку.

Поскаржитися на оголошення

W-7447461 |

Вкажіть причину скарги

Максимальна кількість символів 500
CAPTCHA Фото Капча
Введіть символи, зображені на малюнку.

Схожі оголошення