Реєстрація /

Оренда Офіс вул. М.Житомирська 13 в Києві / W-7434924

Комерційна нерухомість
Ціна:
20 000 грн.
/місяць
$
462 $ (1$ = 43.25 грн.)
392 € (1€ = 51.15 грн.)
К-сть кімнат:
3
Профіль:
Площа:
55 м²
Ціна за м²:
363 грн.
Ремонт (стан):
з євроремонтом
Парковка:
так
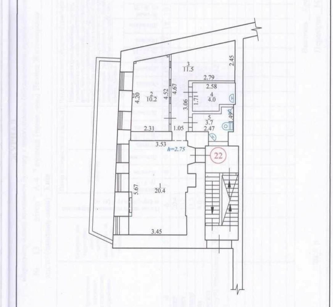
Велика Житомирська 13. Пропонується в оренду офіс загальною площею 54м2. Нежитловий фонд. Ремон виконаний з дуже якісних матеріалів. Є міні кухня, сан.вузол з душевою. Пожарна, охоронна сигналізація, на вікнах решітки. Є кондиціонер та бойлер. До станції метро Золоті Ворота та Майдан Незалежності 1км. До цього орендували під тур. агентство, нотаріус, офіс.
Завантажити .pdf

Посередник

Михайло

Оновлено: 7 Лютого 2026
Код об'єкта: W-7434924
CAPTCHA Фото Капча
Введіть символи, зображені на малюнку.

Поскаржитися на оголошення

W-7434924 |

Вкажіть причину скарги

Максимальна кількість символів 500
CAPTCHA Фото Капча
Введіть символи, зображені на малюнку.

Схожі оголошення