Реєстрація /

Продаж квартири вул. М.Житомирська 7 в Києві / W-7424975

2-кімнатна квартира
Ціна:
8 702 000* грн.
$
205 000 $ (1$ = 42.45 грн.)
176 000 € (1€ = 49.35 грн.)
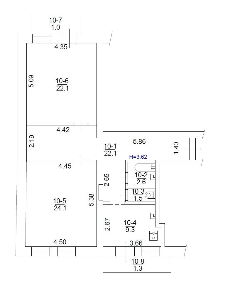
Шевченківський район, вул. Мала Житомирська, 7 - Загальна площа: 84 м² - Поверх: 3 (останній) - Висота стелі: 3,62 м - Кімнати: 2 великі, окремі - Місце під велику комору-гардероб - Балкони: 2 (на вулицю та у внутрішній двір) - Санвузол: роздільний - Велика кладова над ванною кімнатою - Стан ремонту: потребує оновлення (20+ років) - Кухня: промислова витяжка, посудомийка, духовка, газова плита - Кімнати без меблів - Підлога: дубовий паркет Будинок та інфраструктура: - Дореволюційна цегляна будівля, зведена у 1910 році. Має власну історію. В різні періоди тут проживали відомі діячі мистецтва та науки - Повна реконструкція у 1990-х - Перекриття — залізобетон Комунікації: - Центральне опалення, водопостачання та каналізація - Гаряча вода - бойлер - Опалення є під час відключення світла - Газова плита Прямий продаж без комісії. Документам більше 3х років. Перегляд за домовленістю. Торг присутній. Дублювання оголошення заборонене. Рієлторам прохання не турбувати.
Завантажити .pdf

Власник

Артем

Оновлено: 1 Грудня 2025
Код об'єкта: W-7424975
CAPTCHA Фото Капча
Введіть символи, зображені на малюнку.

Поскаржитися на оголошення

W-7424975 |

Вкажіть причину скарги

Максимальна кількість символів 500
CAPTCHA Фото Капча
Введіть символи, зображені на малюнку.

Схожі оголошення

  • Продаж квартири вул. Пирогова 5 в Києві / F-47702 (вул. Пирогова, 5) 7 981 000* грн.

    Продаж квартири вул. Пирогова 5 в Києві / F-47702

  • Продаж квартири вул. Кудрявська 24а в Києві / J-35757 (вул. Кудрявська, 24а) 9 339 000* грн.

    Продаж квартири вул. Кудрявська 24а в Києві / J-35757

  • Продаж квартири вул. Січових Стрільців (Артема) 9в в Києві / W-7340882 (вул. Січових Стрільців (Артема), 9в) 8 915 000* грн.

    Продаж квартири вул. Січових Стрільців (Артема) 9в в Києві / W-7340882

  • Продаж квартири Берестейський просп. (Перемоги просп.) 42а в Києві / R-46974 (Берестейський просп. (Перемоги просп.), 42а) 9 551 000* грн.

    Продаж квартири Берестейський просп. (Перемоги просп.) 42а в Києві / R-46974

  • Продаж квартири вул. Дмитрівська 75 в Києві / R-28967 (вул. Дмитрівська, 75) 9 254 000* грн.

    Продаж квартири вул. Дмитрівська 75 в Києві / R-28967

  • Продаж квартири вул. Леонтовича 5 в Києві / W-7392908 (вул. Леонтовича, 5) 7 853 000* грн.

    Продаж квартири вул. Леонтовича 5 в Києві / W-7392908

  • Продаж квартири вул. Глибочицька 43 корпус 1 в Києві / G-753792 (вул. Глибочицька, 43 корпус 1) 8 448 000* грн.

    Продаж квартири вул. Глибочицька 43 корпус 1 в Києві / G-753792

  • Продаж квартири вул. Лисенка 1 в Києві / W-7424830 (вул. Лисенка, 1) 8 023 000* грн.

    Продаж квартири вул. Лисенка 1 в Києві / W-7424830

  • Продаж квартири Берестейський просп. (Перемоги просп.) 67 в Києві / R-55237 (Берестейський просп. (Перемоги просп.), 67) 8 278 000* грн.

    Продаж квартири Берестейський просп. (Перемоги просп.) 67 в Києві / R-55237

  • Продаж квартири вул. Чорновола Вячеслава 29а в Києві / R-36640 (вул. Чорновола Вячеслава, 29а) 9 551 000* грн.

    Продаж квартири вул. Чорновола Вячеслава 29а в Києві / R-36640

  • Продаж квартири вул. Лисенка 1 в Києві / W-7424473 (вул. Лисенка, 1) 8 023 000* грн.

    Продаж квартири вул. Лисенка 1 в Києві / W-7424473

  • Продаж квартири вул. Золотоустівська 25 в новобудові в Києві / W-7424483 (вул. Золотоустівська, 25) 9 339 000* грн.

    Продаж квартири вул. Золотоустівська 25 в новобудові в Києві / W-7424483