Реєстрація /

Продаж квартири вул. Шолуденка 24 Вишгород / W-7376772

3-кімнатна квартира
Ціна:
2 554 000* грн.
$
60 500 $ (1$ = 42.22 грн.)
52 000 € (1€ = 49.15 грн.)
К-сть кімнат:
Площа (загальна/житлова/кухні):
85/41/10
Поверх/К-сть поверхів:
10/11
Тип (серія) будинку:
Спецпроект 2021-2025 рр
Матеріал стін:
Цегла
Матеріал підлоги:
Стяжка
Матеріал перекриття:
Залізобетон
Кількість, тип санвузлів:
2, Сумісний
Парковка:
так
балкон
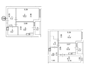
Продаж 3-кімнатної дворівневої квартири площею 84,2 м2 в ЖК «Французький бульвар». Секція 5. Квартира знаходиться на 10-11 поверсі Загальна площа квартири- 84.2м2 Житлова площа квартири – 41.2м² ЕКСПЛІКАЦІЯ КВАРТИРИ: *І рівень (10поверх): Кухня – 9.8м² Житлова кімната – 15.2м2 Хол – 7.2м² санвузол – 4.2м² Лоджія *ІІ рівень (11поверх): Житлова кімната – 15,4м2 Житлова кімната – 10.6м2 Хол – 4,2м2 Санвузол – 6.8м2 Гардероб – 5.16м2 Лоджія Інфраструктура: наземний паркінг, сучасний благоустрій, озеленення подвір’я та безпечні дитячі майданчики з гумовим покриттям. Зупинки громадського транспорту розташовані біля комплексу.На території є продуктові магазини,кав’ярні,кондитерська студія. Неподалік знаходиться Національний парк «Межигір’я», супермаркети Фора та Новус.
Завантажити .pdf

Посередник

ТОВ Prof-Group

Оновлено: 14 Листопада 2025
Код об'єкта: W-7376772
CAPTCHA Фото Капча
Введіть символи, зображені на малюнку.

Поскаржитися на оголошення

W-7376772 |

Вкажіть причину скарги

Максимальна кількість символів 500
CAPTCHA Фото Капча
Введіть символи, зображені на малюнку.

Схожі оголошення

  • Продаж квартири вул. Шкільна 73 в новобудові Вишгород / W-7195611 (вул. Шкільна, 73) 2 301 000* грн.

    Продаж квартири вул. Шкільна 73 в новобудові Вишгород / W-7195611

  • Продаж квартири Шевченка просп. 2б Вишгород / P-29986 (Шевченка просп., 2б) 2 765 000* грн.

    Продаж квартири Шевченка просп. 2б Вишгород / P-29986