Реєстрація /

Продаж квартири вул. Шкільна 73 в новобудові Вишгород / W-7195611

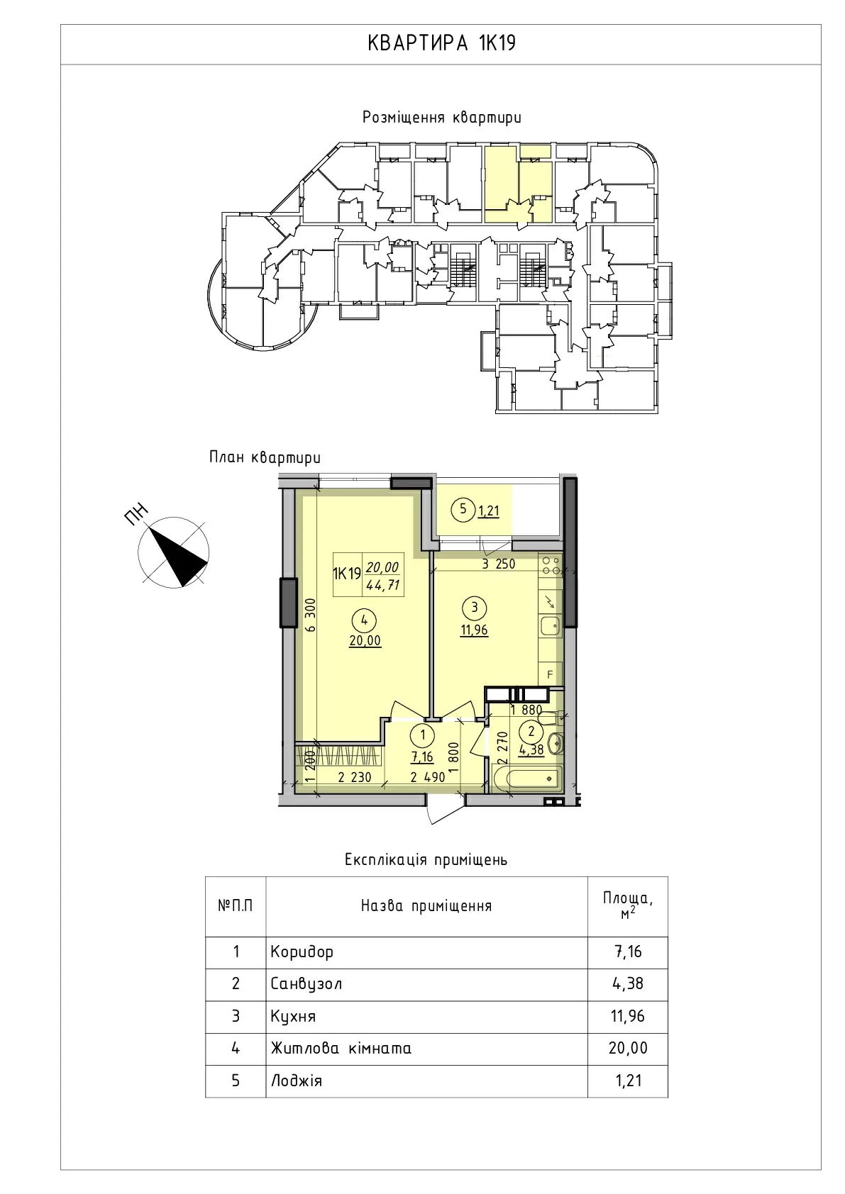
1-кімнатна квартира
Ціна:
2 089 000* грн.
$
49 500 $ (1$ = 42.2 грн.)
42 300 € (1€ = 49.35 грн.)
К-сть кімнат/Розташування:
Площа (загальна/житлова/кухні):
42.2/15/15
Поверх/К-сть поверхів:
11/16
Тип (серія) будинку:
спецпроект 2016-2020 рр.
Матеріал стін:
Газоблок
Матеріал підлоги:
Стяжка
Матеріал перекриття:
Залізобетон
Кількість, тип санвузлів:
1, Сумісний
Парковка:
так
Ремонт (стан):
з косметичним ремонтом
балкон
Продаж 1 кімнатної квартири в зданому ЖК «Борисо-Глібський» кор.4, - будинок введений в експлуатацію; - отримали поштову адресу; - документи на право власності на руках - вже можна отримати ключі і починати ремонт Комплекс розташований у самому центрі м. Вишгород. Шкільна 73Г, всього 8 км. від Києва, за 15-ти хв. від м. Героїв Дніпра – Петрівка! Комплектація квартир: лазерна стяжка підлоги, штукатурка стін, вхідні металеві двері, розведена сантехніка по стоякам, металопластикові вікна «Rehau», висота стелі 2.70, лічильники: вода електрика; опалення-централізоване - міське, електрика до квартири, ліфти (вантажний, пасажирський) Поруч безліч супермаркетів, різних державних установ (лікарня, садки, школи) тощо, Київське море, Вишгородська набережна та різні розваги, за 50 м. від будинку зупинка громадського транспорту. Усі комунікації міські, внесені до генплану міста Вишгород. Землю викуплено та власності забудовника. З повагою відділ продажу «Проф-Груп»
Завантажити .pdf

Власник

ТОВ Prof-Group

Оновлено: 8 Жовтня 2025
Код об'єкта: W-7195611
CAPTCHA Фото Капча
Введіть символи, зображені на малюнку.

Поскаржитися на оголошення

W-7195611 |

Вкажіть причину скарги

Максимальна кількість символів 500
CAPTCHA Фото Капча
Введіть символи, зображені на малюнку.

Схожі оголошення

  • Продаж квартири 1б Вишгород / W-7417111 (Вишгород) 2 194 000* грн.

    Продаж квартири 1б Вишгород / W-7417111

  • Продаж квартири вул. Шолуденка 24 в новобудові Вишгород / W-7376769 (вул. Шолуденка, 24) 2 110 000* грн.

    Продаж квартири вул. Шолуденка 24 в новобудові Вишгород / W-7376769

  • Продаж квартири вул. Кургузова 3б Вишгород / W-7416556 (вул. Кургузова, 3б) 2 026 000* грн.

    Продаж квартири вул. Кургузова 3б Вишгород / W-7416556

  • Продаж квартири вул. Шкільна 42 в новобудові Вишгород / W-7150550 (вул. Шкільна, 42) 1 920 000* грн.

    Продаж квартири вул. Шкільна 42 в новобудові Вишгород / W-7150550