Реєстрація /

Оренда Офіс вул. Білоруська 36 в Києві / W-7448361

Комерційна нерухомість
Ціна:
23 000 грн.
/місяць
$
519 $ (1$ = 44.25 грн.)
443 € (1€ = 51.9 грн.)
Профіль:
Площа:
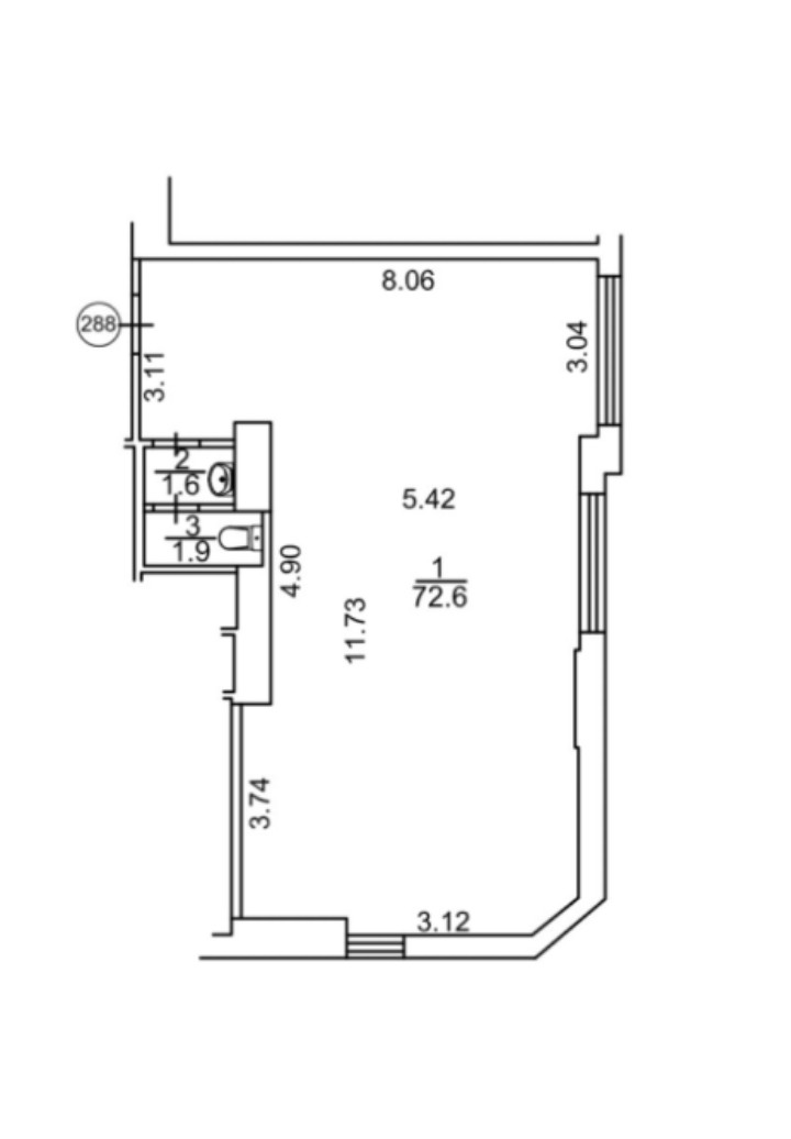
80 м²
Ціна за м²:
287 грн.
Лук'янівка метро,вул Білоруська 36А, ЖК Срібна вежа, приміщення 2 поверх,нежитловий фонд,76.2м добрий стан,кондіционери,сігналізация,вільне планування та с\в, метро 7 хв.22800грн + комунальні.(Комісія 50%)
Завантажити .pdf

Посередник

Олександр

Оновлено: 27 Квітня 2026
Код об'єкта: W-7448361
CAPTCHA Фото Капча
Введіть символи, зображені на малюнку.

Поскаржитися на оголошення

W-7448361 |

Вкажіть причину скарги

Максимальна кількість символів 500
CAPTCHA Фото Капча
Введіть символи, зображені на малюнку.

Схожі оголошення