Реєстрація /

Продаж Офісно-складське приміщення вул. Кирилівська (Фрунзе) в Києві / W-7447270

Комерційна нерухомість
Ціна:
30 670 000* грн.
$
690 000 $ (1$ = 44.45 грн.)
585 000 € (1€ = 52.45 грн.)
Площа:
1123 м²
Ціна за м²:
27 300 грн.
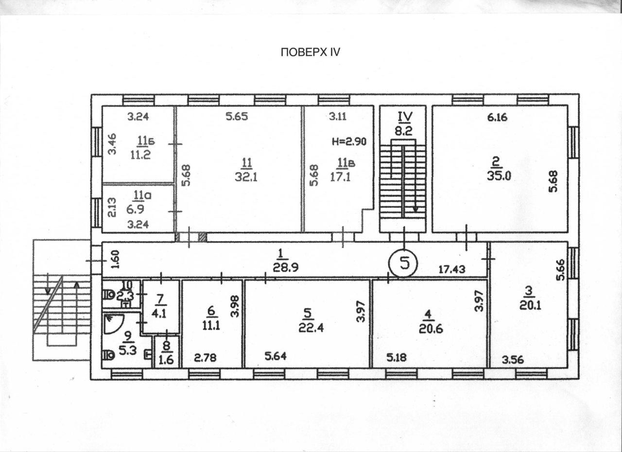
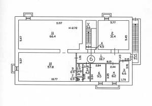
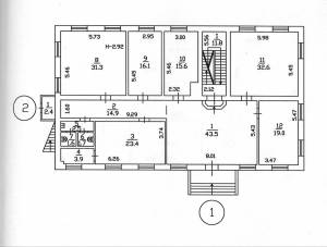
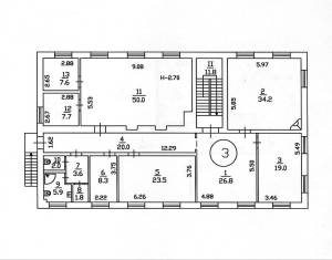
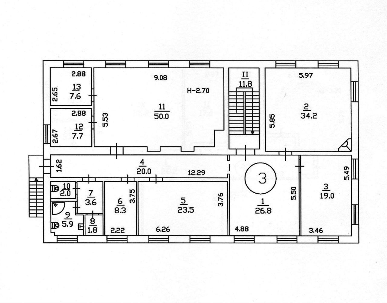
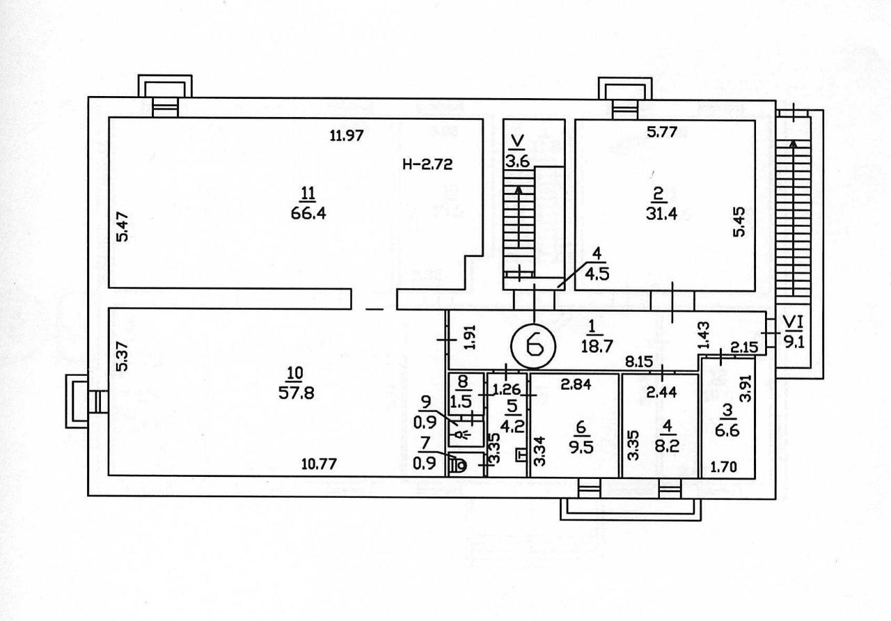
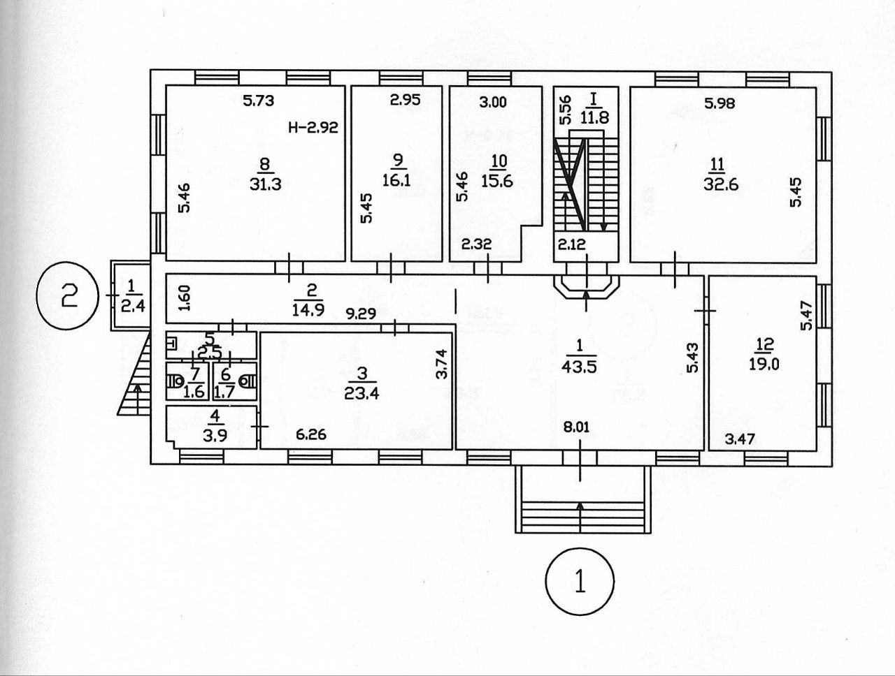
Продаж Окремої офісно-складської будівлі (свіжий ремонт). Поверховість:4 поверхи + повноцінний підвал. Ділянка:21сотка Комунікації: електроенергія 100кВт, каналізація - міська,вода і опалення - місцеві. У підвалі обладнано сухий склад. Встановлено технологічний підйомний кран,що подає вантажі з вулиці прямо в склад.Це значно пришвидшує логістику та розвантаження. Планування та автономність: Кожен поверх спроектовано як автономний На кожному поверсі:свій кабінет керівника (директора),робочі зони та власна кухня. Є можливість здавати поверхи в оренду різним орендарям. Велика ділянка,асфальтована парковка,є каркас будівлі на 4 поверхи з бетону, який можна облаштувати під СТО чи інший вид діяльності облаштування.Два заїзди на територію з охороною через шлагбаум. Куренівський парк, вул Фрунзе (Кирилівська) 160. Транспорт: 1-3 хвилини пішки до зупинок (трамвай,маршрутки), зручний доїзд до метро "Почайна" або "Тараса Шевченка". АТБ, ресторани, банки — в радіусі 100 метрів. Ціна:$690000 торг
Завантажити .pdf

Власник

Анна

Оновлено: 21 Квітня 2026
Код об'єкта: W-7447270
CAPTCHA Фото Капча
Введіть символи, зображені на малюнку.

Поскаржитися на оголошення

W-7447270 |

Вкажіть причину скарги

Максимальна кількість символів 500
CAPTCHA Фото Капча
Введіть символи, зображені на малюнку.

Схожі оголошення

  • Продаж Окремо розташована будівля вул. Кирилівська (Фрунзе) в Києві / D-40678 (Окремо розташована будівля, вул. Кирилівська (Фрунзе)) 31 120 000* грн.

    Продаж Окремо розташована будівля вул. Кирилівська (Фрунзе) в Києві / D-40678

  • Продаж Нежитлове приміщення вул. Кирилівська (Фрунзе) в Києві / G-1869330 (Нежитлове приміщення, вул. Кирилівська (Фрунзе)) 31 560 000* грн.

    Продаж Нежитлове приміщення вул. Кирилівська (Фрунзе) в Києві / G-1869330