Реєстрація /

Оренда Офіс вул. Ґарета Джонса (Хохлових Сім'ї) 15 в Києві / W-7446685

Комерційна нерухомість
Ціна:
185 000 грн.
/місяць
$
4 170 $ (1$ = 44.45 грн.)
3 570 € (1€ = 51.85 грн.)
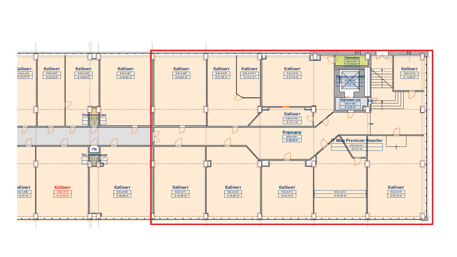
Автономне енергозабезпечення в БЦ, підключен дизельний генератор до офису! Також на даному об`єкті встановлені: твердопаливний та газовий котли, які забезпечують автономне, безперебійне та надійне опалення даного бізнес-центру, незалежно від міських теплокомунікацій Бізнес-центр розташований у Шевченківському районі Києва за адресою вул. Гарета Джонса (Сім`ї Хохлових), 15. 10 хвилин пішки до станції метро Дорогожичі. Характеристики приміщення: - площа: 588 м.к.в. (з врахуванням площ загального користування); - 14 кабінетів із офісним ремонтом, на 4 поверсі. - грузовий ліфт підіймається всередину приміщення - пасажирський ліфт OTIS, знаходиться поруч; - система кондиціонування в кожному кабінеті; Ціна оренди - 315 Грн./кв.метр + ПДВ + Комунальні 185220 грн На території БЦ, є власна, охороняєма парковка 24/7, під відеонаглядом Ціна аренди паркомісця: 3000 грн + ПДВкомуналка літо-80грн зима-200грн
Завантажити .pdf

Посередник

Юрій

Оновлено: 29 Травня 2026
Код об'єкта: W-7446685
CAPTCHA Фото Капча
Введіть символи, зображені на малюнку.

Поскаржитися на оголошення

W-7446685 |

Вкажіть причину скарги

Максимальна кількість символів 500
CAPTCHA Фото Капча
Введіть символи, зображені на малюнку.

Схожі оголошення