Реєстрація /

Оренда Офіс вул. Бойчука Михайла (Кіквідзе) 41б в Києві / W-7446567

Комерційна нерухомість
Ціна:
241 000* грн.
/місяць
$
5 500 $ (1$ = 43.85 грн.)
4 650 € (1€ = 51.85 грн.)
Житловий комплекс:
К-сть кімнат:
5
Профіль:
Площа:
230 м²
Поверх/К-сть поверхів:
23/26
Ціна за м²:
1 050 грн.
Ремонт (стан):
з євроремонтом
Парковка:
так
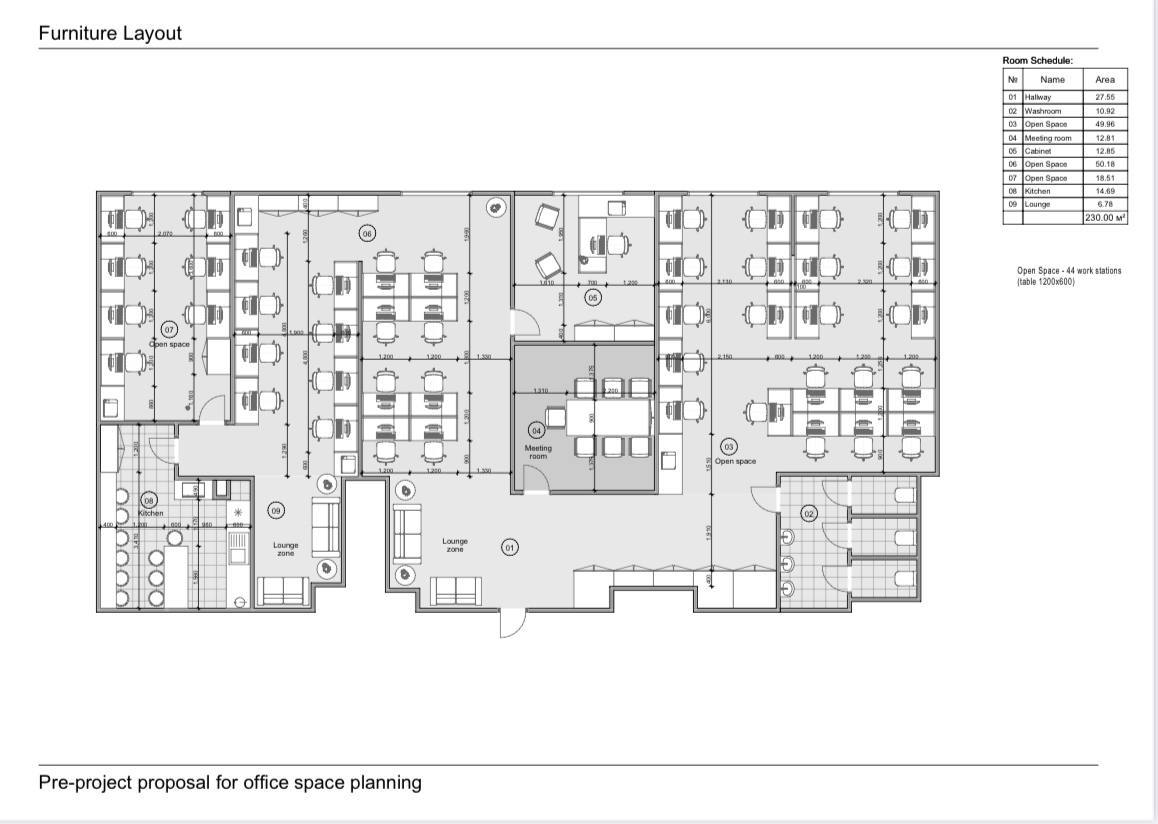
Оренда офісу 230 м2 в Печерському районі по вулиці Михайла Бойчука, ЖК "Новопечерська Вежа". Житловий фонд, приміщення розташоване на 23-му поверсі (під час відключення світла працюють ліфти, є вода і опалення). Планування: 2 зони Open space, 2 кабінета, переговорна, кухня, санвузли. Офіс повністю мебльований на 43 робочих місця. Оснащений кондиціонуванням, під’єднаний до окремого генератора потужністю 80 кВт, який розташований у підземному паркінгу (працює в автоматичному режимі під час відключення електроенергії, забезпечуючи стабільне живлення офісу), також стоїть інвертор та батареї на 30 кВт. На території парковка для клієнтів та підземний паркінг. Додатково - комунальні послуги. Код оголошення RC-223-662.
Завантажити .pdf

Посередник

ALAN

Оновлено: 16 Квітня 2026
Код об'єкта: W-7446567
CAPTCHA Фото Капча
Введіть символи, зображені на малюнку.

Поскаржитися на оголошення

W-7446567 |

Вкажіть причину скарги

Максимальна кількість символів 500
CAPTCHA Фото Капча
Введіть символи, зображені на малюнку.

Схожі оголошення