Реєстрація /

Оренда Офіс вул. Франка Івана 4 в Києві / W-7445595

Комерційна нерухомість
Ціна:
222 000* грн.
/місяць
$
5 000 $ (1$ = 44.45 грн.)
4 290 € (1€ = 51.8 грн.)
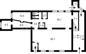
• Київ, Франка Івана, 4, ; Дореволюційні; стіни: цегла; перекриття: залізобетон; поверховість: 4; кількість виходів: 2; гараж; транспорт: ст.М"Золоті Ворота"; будинок 1897 року, архітектор Ф. Краусс, біля дороги, середній стан, кодовий замок, поруч з будинком Міністерство культури України, посольство Австрійської республіки, у пішій доступності Національний академічний театр, ресторани: "Дежавю", "Опера", "Авалон" • Офіс, 4 кімн., 1-й поверх, площа: 150,0 кв.м, дошка, з євроремонтом, 2 вих.; стильний офіс площею 150 м2 з окремим входом в історичному центрі Києва за п'ять хвилин від метро Золоті Ворота. Переважно відкрите планування простору розрахованого на 22 робочі місця, переговорна, невелика кухня, два санвузли, серверна. Кондиціонер. Паркування на території. Безпосередня близькість (100 м) до готелю Radisson забезпечує додаткове паркування, великі конференц-зали та інше. Можливе використання тераси.
Завантажити .pdf

Посередник

Александр

Оновлено: 8 Травня 2026
Код об'єкта: W-7445595
CAPTCHA Фото Капча
Введіть символи, зображені на малюнку.

Поскаржитися на оголошення

W-7445595 |

Вкажіть причину скарги

Максимальна кількість символів 500
CAPTCHA Фото Капча
Введіть символи, зображені на малюнку.

Схожі оголошення