Реєстрація /

Оренда Офіс вул. Липківського Василя митрополита (Урицького) 45 в Києві / W-7445563

Комерційна нерухомість
Ціна:
80 000* грн.
/місяць
$
1 800 $ (1$ = 44.45 грн.)
1 550 € (1€ = 51.75 грн.)
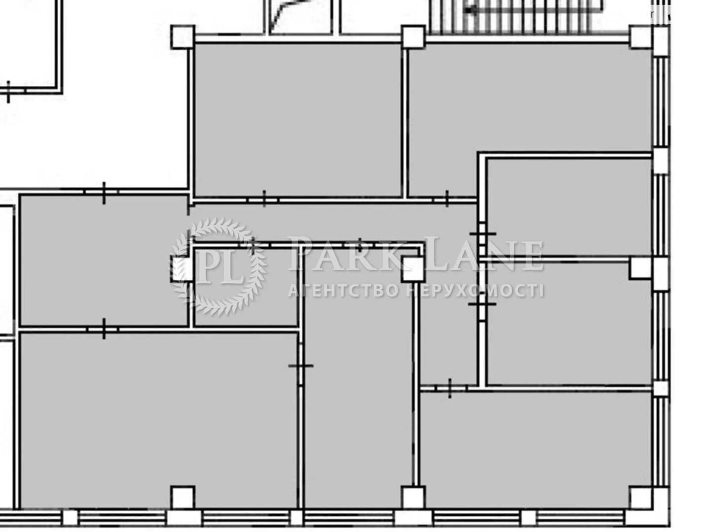
ПОСТІЙНЕ ЕЛЕКТРОПОСТАЧАННЯ! Оренда офісу 218, 26 м2 у бізнес-центрі на Соломянській площі. Кабінетна система. Гарний вид на Соломянську площу. Усі комунікації. Свіжий ремонт заїжджай та працюй. Кондиціонери у приміщенні. Інфраструктура БЦ: відділення банку, нотаріус, супермаркет і рестора, страхова компанія, фітнес клуб. Завжди є світл. Пропускна система за електронними перепустками. Сучасні інженерні та телекомунікаційні системи. Парковка на 70 авто
Завантажити .pdf

Посередник

Марія

Оновлено: 21 Травня 2026
Код об'єкта: W-7445563
CAPTCHA Фото Капча
Введіть символи, зображені на малюнку.

Поскаржитися на оголошення

W-7445563 |

Вкажіть причину скарги

Максимальна кількість символів 500
CAPTCHA Фото Капча
Введіть символи, зображені на малюнку.

Схожі оголошення