Реєстрація /

Оренда Магазин вул. Ахматової Анни 30 в Києві / W-7445272

Комерційна нерухомість
Ціна:
155 000* грн.
/місяць
$
3 500 $ (1$ = 44.3 грн.)
2 980 € (1€ = 52.05 грн.)
Профіль:
Площа:
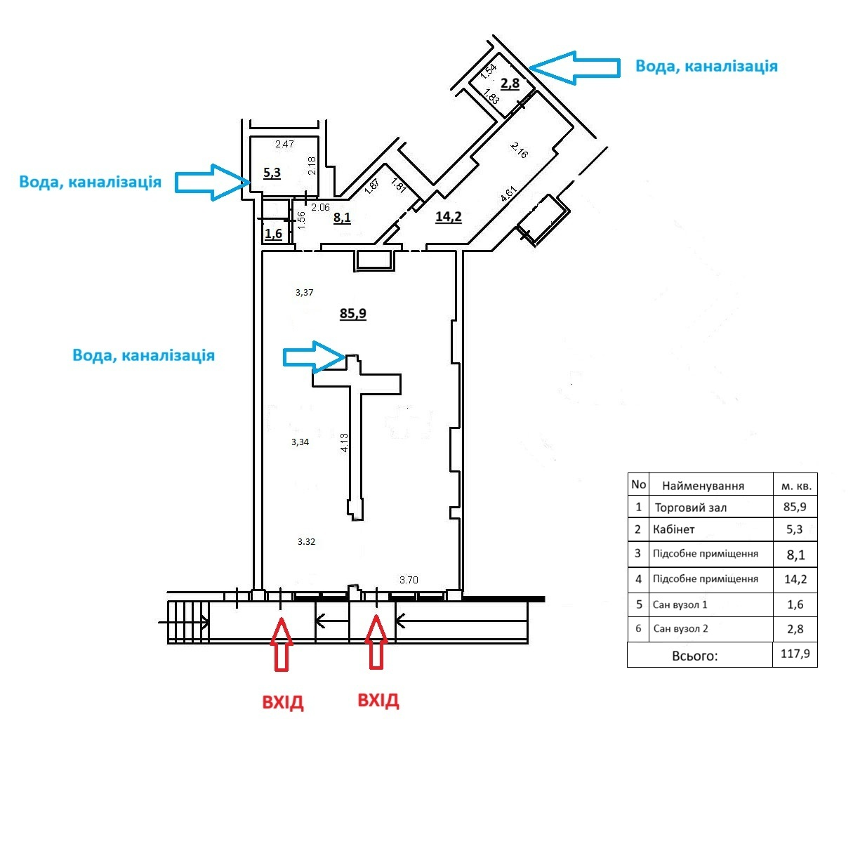
118 м²
Ціна за м²:
1 310 грн.
118 м² • Фасад • Ахматової 30 — під аптеку, оптику, банк, ритейл Фасадне приміщення 118 м² на вул. Анни Ахматової, 30. Великі вітрини, два окремі входи, правильна форма залів, сучасний ремонт. Потужність 35 кВт. Локація з високим трафіком — щільна забудова, поруч зупинки, школи, супермаркети. Планування: дві просторі зали, санвузол, підсобні приміщення. Світле, добре проглядається з вулиці, є можливість розміщення зовнішньої реклами. Зручний доступ та парковка перед входом. Підійде під аптеку, оптику, винний або гастрономічний бутик, банк чи фінансову установу, магазин, шоурум, сервіс, пункт видачі замовлень, офіс з клієнтським потоком. Формат дозволяє швидко стартувати без значних інвестицій у ремонт. Локація забезпечує стабільний потік мешканців Ахматової, Драгоманова та Срібнокільської. Активний пішохідний рух і висока видимість.
Завантажити .pdf

Посередник

Евгений

Оновлено: 8 Квітня 2026
Код об'єкта: W-7445272
CAPTCHA Фото Капча
Введіть символи, зображені на малюнку.

Поскаржитися на оголошення

W-7445272 |

Вкажіть причину скарги

Максимальна кількість символів 500
CAPTCHA Фото Капча
Введіть символи, зображені на малюнку.

Схожі оголошення