Реєстрація /

Оренда Торгово-офісне приміщення вул. Братства тарасівців (Декабристів) 7 в Києві / W-7429870

Комерційна нерухомість
Ціна:
165 000 грн.
/місяць
$
3 810 $ (1$ = 43.2 грн.)
3 230 € (1€ = 51.15 грн.)
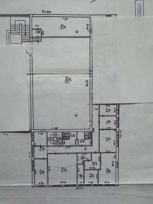
Оренда комерційного приміщення біля метро «Харківська» Київ, вул. Братів Тарасовців, 7 2 поверх, без ліфту. Здається в оренду велике комерційне приміщення загальною площею 550 м², з яких 227 м² — open space. Приміщення розташоване у прохідній локації поруч із метро «Харківська». Планування та можливості: open space 227 м². додатково — кабінетна частина. Висота стелі 4 метри. 50 кВт. Стіни ненесучі, можливе повне перепланування. Є мокрі точки. Підходить під зонування або поділ на блоки. Надаються ремонтні канікули (умови обговорюються). Переваги локації: кілька хвилин пішки до метро активний пішохідний та автомобільний трафік поруч ТЦ, житлові будинки, парковка зручний під’їзд Ідеально підійде під: офіс / IT / call-центр клініку, медичний або діагностичний центр навчальний центр, коворкінг фітнес, студії, салони шоурум, сервісний бізнес Орендна ставка: 165 000 грн/міс Ремонтні канікули — надаються Перегляди за домовленістю.
Завантажити .pdf

Посередник

ALAN

Оновлено: 6 Лютого 2026
Код об'єкта: W-7429870
CAPTCHA Фото Капча
Введіть символи, зображені на малюнку.

Поскаржитися на оголошення

W-7429870 |

Вкажіть причину скарги

Максимальна кількість символів 500
CAPTCHA Фото Капча
Введіть символи, зображені на малюнку.

Схожі оголошення

  • Оренда Нежитлове приміщення вул. Драгоманова в Києві / X-7637 (Нежитлове приміщення, вул. Драгоманова) 150 000 грн./місяць

    Оренда Нежитлове приміщення вул. Драгоманова в Києві / X-7637

  • Оренда Торгово-офісне приміщення вул. Братства тарасівців (Декабристів) 7 в Києві / W-7433453 (Торгово-офісне приміщення, вул. Братства тарасівців (Декабристів)) 165 000 грн./місяць

    Оренда Торгово-офісне приміщення вул. Братства тарасівців (Декабристів) 7 в Києві / W-7433453

  • Оренда Нежитлове приміщення Харківське шосе 152 в Києві / W-7426961 (Нежитлове приміщення, Харківське шосе) 173 000* грн./місяць

    Оренда Нежитлове приміщення Харківське шосе 152 в Києві / W-7426961

  • Оренда Нежитлове приміщення вул. Центральна в Києві / Q-28197 (Нежитлове приміщення, вул. Центральна) 170 000 грн./місяць

    Оренда Нежитлове приміщення вул. Центральна в Києві / Q-28197