Реєстрація /

Продаж квартири вул. Кішки Самійла (Конєва Маршала) в новобудові в Києві / W-7444838

3-кімнатна квартира
Ціна:
9 082 000* грн.
$
205 000 $ (1$ = 44.3 грн.)
174 000 € (1€ = 52.05 грн.)
К-сть кімнат/Розташування:
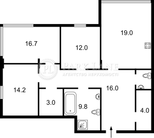
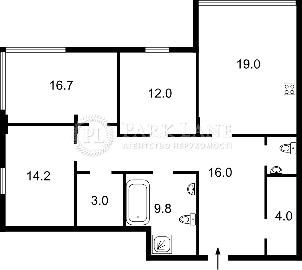
Площа (загальна/житлова/кухні):
96/43/19
Поверх/К-сть поверхів:
20/23
Тип (серія) будинку:
спецпроект 2011-2015 рр.
Матеріал стін:
Цегла
Матеріал підлоги:
Комбінов.
Матеріал перекриття:
Залізобетон
Кількість, тип санвузлів:
2, Розд.
Ремонт (стан):
з євроремонтом
меблі
балкон
Більше 3-х років у власності. Власник в Україні. Прямий продаж. Продаж сімейної, видової квартири з 3 окремими спальнями в сучасному ЖК Венеція. Будинок з генератором! Адреса: Самійла Кішки, 12А - 94 м2; - 20/23 поверх; - в квартирі резервне живлення потужність 6 кВт; - шикарний вид з вікон; - покращений будинок, побудований з цегли; - автономність будинку. Генератор на ліфт, воду та опалення; - цілодобова охорона та сучасна вхідна група. Планування: передпокій, окрема гардеробна при вході, гостьовий с/в, простора кухня-вітальня, 3 окремих кімнати, друга гардеробна, господарський с/в з ванною та душем. Квартира в стані як на фото. Укомплектована: прально-сушильною машиною, посудомийкою, індукційною вар. поверхнею, духовою шафою, бойлером на 200 л., телевізором у вітальні. Багато місця для речей. На першому поверсі є облаштоване укриття з комфортними умовами, є мʼякі крісла та Wі-fi.
Завантажити .pdf

Посередник

Марина

Оновлено: 28 Квітня 2026
Код об'єкта: W-7444838
CAPTCHA Фото Капча
Введіть символи, зображені на малюнку.

Поскаржитися на оголошення

W-7444838 |

Вкажіть причину скарги

Максимальна кількість символів 500
CAPTCHA Фото Капча
Введіть символи, зображені на малюнку.

Схожі оголошення

  • Продаж квартири вул. Богданівська 7г в Києві / Q-32670 (вул. Богданівська, 7г) 9 082 000* грн.

    Продаж квартири вул. Богданівська 7г в Києві / Q-32670

  • Продаж квартири вул. Бойчука Михайла (Кіквідзе) 41б в новобудові в Києві / W-7448123 (вул. Бойчука Михайла (Кіквідзе), 41б) 9 303 000* грн.

    Продаж квартири вул. Бойчука Михайла (Кіквідзе) 41б в новобудові в Києві / W-7448123

  • Продаж квартири вул. Річкова (Річна) 4 в новобудові в Києві / W-7448568 (вул. Річкова (Річна), 4) 9 330 000* грн.

    Продаж квартири вул. Річкова (Річна) 4 в новобудові в Києві / W-7448568

  • Продаж квартири вул. Павлівська 10 в Києві / W-7439352 (вул. Павлівська, 10) 8 860 000* грн.

    Продаж квартири вул. Павлівська 10 в Києві / W-7439352

  • Продаж квартири вул. Саперне поле 12 в Києві / W-7393350 (вул. Саперне поле, 12) 9 214 000* грн.

    Продаж квартири вул. Саперне поле 12 в Києві / W-7393350

  • Продаж квартири Голосіївський просп. (40-річчя Жовтня) 95а в Києві / R-72500 (Голосіївський просп. (40-річчя Жовтня), 95а) 8 860 000* грн.

    Продаж квартири Голосіївський просп. (40-річчя Жовтня) 95а в Києві / R-72500

  • Продаж квартири вул. Бульварно-Кудрявська (Воровського) 17 в Києві / F-47334 (вул. Бульварно-Кудрявська (Воровського), 17) 9 484 000* грн.

    Продаж квартири вул. Бульварно-Кудрявська (Воровського) 17 в Києві / F-47334

  • Продаж квартири вул. Тютюнника Василя (Барбюса Анрі) 28а в Києві / W-7420539 (вул. Тютюнника Василя (Барбюса Анрі), 28а) 8 860 000* грн.

    Продаж квартири вул. Тютюнника Василя (Барбюса Анрі) 28а в Києві / W-7420539

  • Продаж квартири Голосіївський просп. (40-річчя Жовтня) 95а в Києві / W-7448347 (Голосіївський просп. (40-річчя Жовтня), 95а) 9 746 000* грн.

    Продаж квартири Голосіївський просп. (40-річчя Жовтня) 95а в Києві / W-7448347

  • Продаж квартири вул. Шаповала Генерала (Механізаторів) 2а в Києві / W-7447641 (вул. Шаповала Генерала (Механізаторів), 2а) 9 746 000* грн.

    Продаж квартири вул. Шаповала Генерала (Механізаторів) 2а в Києві / W-7447641

  • Продаж квартири вул. Матикіна Генерала 12 в Києві / N-23529 (вул. Матикіна Генерала, 12) 8 860 000* грн.

    Продаж квартири вул. Матикіна Генерала 12 в Києві / N-23529

  • Продаж квартири вул. Микільсько-Слобідська 10 в Києві / W-7429316 (вул. Микільсько-Слобідська, 10) 9 968 000* грн.

    Продаж квартири вул. Микільсько-Слобідська 10 в Києві / W-7429316