Реєстрація /

Продаж Нежитлове приміщення вул. Левандовська (Анищенка) 8 в Києві / W-7443136

Комерційна нерухомість
Ціна:
16 590 000* грн.
$
375 000 $ (1$ = 44.25 грн.)
320 000 € (1€ = 51.8 грн.)
К-сть кімнат:
5
Площа:
118.9 м²
Тип (серія) будинку:
доревол.
Поверх/К-сть поверхів:
1/4
Ціна за м²:
140 000 грн.
Матеріал стін:
Цегла
Ремонт (стан):
з ремонтом
Парковка:
так
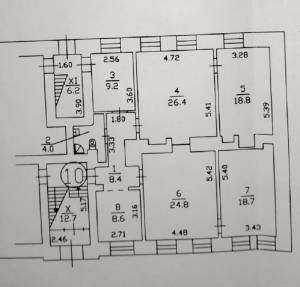
Без% Фото реал. Печерський р-н, метро Арсенальна, Липки, вул.Левандовська 8 (колиш Аніщенка), царський будинок, нежитловий фонд 118,9м2 в тихому сердці столиці, 1/4поверх, 2 входи (з фасаду через парадне та з паркінгу в закритому дворі), новий офісний ремонт, 5 кабінетів (97,3м2) + окремо кухня-столова, кімната з дзеркальною стіною, серверна, рецепція, м/п/в, ролети, с/в/c (бойлер,душ,сушарка), кондиціонери,компьютер.розводка,інтернет,сигналізація, ввод з двору для підключення генератора, тихий закритий двір з місцем для паркування, чисте парадне. Розвинена інфраструктура, історич.та культур.пам'ятки Києва, Посольство Латвії, гімназія, кафе, McDonald's, Бізнес-центр"SENATOR". Пішки10-20хв.Посольство Китаю, Представництво ООН, Верховна Рада України, Маріїнський палац, МОЗ, БЦ Summit, NOVUS. Метро Арсенальна 8хв, Кловська 25хв.пішки, вул.Хрещатик 35хвпішки.Власник фізособа.Розглянемо різні види оплати. Податки і збори за домовленістю. 374999уе Без% Є відео Можлив.продаж з орендатором.
Завантажити .pdf

Посередник

Володимир Едуардович Левицький

Оновлено: 6 Травня 2026
Код об'єкта: W-7443136
CAPTCHA Фото Капча
Введіть символи, зображені на малюнку.

Поскаржитися на оголошення

W-7443136 |

Вкажіть причину скарги

Максимальна кількість символів 500
CAPTCHA Фото Капча
Введіть символи, зображені на малюнку.

Схожі оголошення

  • Продаж Офіс вул. Грушевського М. в Києві / Q-9450 (Офіс, вул. Грушевського М.) 16 110 000* грн.

    Продаж Офіс вул. Грушевського М. в Києві / Q-9450

  • Продаж Нежитлове приміщення вул. Круглоуніверситетська в Києві / A-115153 (Нежитлове приміщення, вул. Круглоуніверситетська) 16 060 000* грн.

    Продаж Нежитлове приміщення вул. Круглоуніверситетська в Києві / A-115153

  • Продаж Офіс вул. Шота Руставелі в Києві / Q-13504 (Офіс, вул. Шота Руставелі) 15 400 000 грн.

    Продаж Офіс вул. Шота Руставелі в Києві / Q-13504

  • Продаж Офіс вул. Еспланадна в Києві / K-32290 (Офіс, вул. Еспланадна) 15 930 000* грн.

    Продаж Офіс вул. Еспланадна в Києві / K-32290

  • Продаж Нежитлове приміщення вул. Городецького Архітектора в Києві / Q-13042 (Нежитлове приміщення, вул. Городецького Архітектора) 16 820 000* грн.

    Продаж Нежитлове приміщення вул. Городецького Архітектора в Києві / Q-13042

  • Продаж Офіс вул. Мазепи Івана (Січневого Повстання) в Києві / R-71489 (Офіс, вул. Мазепи Івана (Січневого Повстання)) 17 260 000* грн.

    Продаж Офіс вул. Мазепи Івана (Січневого Повстання) в Києві / R-71489

  • Продаж Нежитлове приміщення вул. Грушевського М. в Києві / R-57122 (Нежитлове приміщення, вул. Грушевського М.) 15 490 000* грн.

    Продаж Нежитлове приміщення вул. Грушевського М. в Києві / R-57122

  • Продаж Нежитлове приміщення Філатова Академіка пров. в Києві / R-68473 (Нежитлове приміщення, Філатова Академіка пров.) 15 930 000* грн.

    Продаж Нежитлове приміщення Філатова Академіка пров. в Києві / R-68473

  • Продаж Офіс Фортечний тупик (Тверський тупик) в Києві / C-107204 (Офіс, Фортечний тупик (Тверський тупик)) 15 490 000* грн.

    Продаж Офіс Фортечний тупик (Тверський тупик) в Києві / C-107204

  • Продаж Магазин вул. Німанська в Києві / Q-6969 (Магазин, вул. Німанська) 17 480 000* грн.

    Продаж Магазин вул. Німанська в Києві / Q-6969

  • Продаж Нежитлове приміщення вул. Верхогляда Андрія (Драгомирова Михайла) в Києві / J-33468 (Нежитлове приміщення, вул. Верхогляда Андрія (Драгомирова Михайла)) 15 220 000* грн.

    Продаж Нежитлове приміщення вул. Верхогляда Андрія (Драгомирова Михайла) в Києві / J-33468

  • Продаж Нежитлове приміщення вул. Грушевського М. в Києві / H-49043 (Нежитлове приміщення, вул. Грушевського М.) 15 930 000* грн.

    Продаж Нежитлове приміщення вул. Грушевського М. в Києві / H-49043