Реєстрація /

Оренда Бізнес-центр вул. Липківського Василя митрополита (Урицького) 45 в Києві / W-7442517

Комерційна нерухомість
Ціна:
97 800* грн.
/місяць
$
2 200 $ (1$ = 44.45 грн.)
1 890 € (1€ = 51.85 грн.)
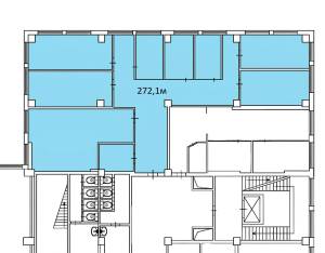
Пропонуємо оренду приміщення в бізнес-центрі за адресою: вул. В. Липківського, 45 (Солом’янська площа, м. Вокзальна). Характеристики: - Загальна площа: 272,49 м2 - Поверх: 8 з 9 - Планування – відкритого типу Безпека: - Ресепшн сервіс - Карткова система пропусків - Охорона 24/7 - Пожеже оповіщення - Укриття на цокольному поверсі з двома входами - Система оповіщення під час повітряної тривоги Оснащення: - Безперебійна електрична система - Опалення та кондиціонування - Водопостачання та водовідведення Локація: - Зручний доступ на громадському транспорті - Паркінг Інфраструктура бізнес-центру: - Банк, нотаріус, супермаркет NOVUS, кав’ярня, ресторан GAGA, фітнес-зал, - Поруч парк ім. Зерова Умови оренди: - Ставка: 360 грн/м2 - Комунальні послуги додатково Приміщення з ремонтом. Заїжджайте та працюйте.
Завантажити .pdf

Посередник

Мельник Олена

Оновлено: 26 Травня 2026
Код об'єкта: W-7442517
CAPTCHA Фото Капча
Введіть символи, зображені на малюнку.

Поскаржитися на оголошення

W-7442517 |

Вкажіть причину скарги

Максимальна кількість символів 500
CAPTCHA Фото Капча
Введіть символи, зображені на малюнку.

Схожі оголошення