Реєстрація /

Продаж квартири вул. 1-го Травня 1 Нові Петрівці / W-7442468

2-кімнатна квартира
Ціна:
1 525 000 грн.
$
34 900 $ (1$ = 43.65 грн.)
29 700 € (1€ = 51.3 грн.)
К-сть кімнат:
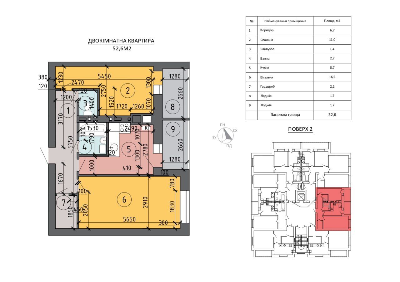
Площа (загальна):
52.6
ЖК «PETROVSKY» - це тихий, затишний і сучасний житловий комплекс в передмісті. Комплекс розташований всього в 10 км від м.Київ, а саме Вишгородський район, с. Нові Петрівці, на розі вул. 1-го Травня та пров. 1-го Травня. Інтервал поїздки до метро Героїв Дніпра займає всього 15-20 хвилин громадським транспортом. Регулярні перевезення, гарне транспортне сполучення. Комплекс складається з п’яти , 9-ти поверхових цегляних будинків. На території комплексу передбачена наземна гостьова парковка , сучасний благоустрій, озеленення подвір'я і безпечні дитячі майданчики. Комплектація квартири: - чорнова штукатурка(обробка) стін, - вхідні металеві двері, - сантехніка розведена по стоякам, - металопластикові вікна, - висота стелі 2.70 - встановлені лічильники на всі види комунікацій: вода, електрика; газ - опалення- індивідуальне (2-х контурний газовий котел) - ввідний кабель електроенергії - 1 ліфт - Централізовані комунікації (водопостачання, каналізація, газопостачання та електрифікація)
Завантажити .pdf

Посередник

ТОВ Prof-Group

Оновлено: 10 Квітня 2026
Код об'єкта: W-7442468
CAPTCHA Фото Капча
Введіть символи, зображені на малюнку.

Поскаржитися на оголошення

W-7442468 |

Вкажіть причину скарги

Максимальна кількість символів 500
CAPTCHA Фото Капча
Введіть символи, зображені на малюнку.