Реєстрація /

Продаж будинку вул. Північна Гореничі / W-7440352

4-кімнатний дім
Ціна:
3 456 000* грн.
$
79 000 $ (1$ = 43.75 грн.)
67 500 € (1€ = 51.2 грн.)
К-сть поверхів:
2
К-сть кімнат:
4
Загальна площа:
115
Площа ділянки:
5.5 сот.
рік будівництва:
2026
Матеріал стін:
Газоблок
Електропостачання:
так
Опалення:
Автономне
Газопостачання:
Відсутній
Водопостачання:
Свердловина (вода заведена в будинок)
Каналізація:
В будинку
До Києва:
5 км
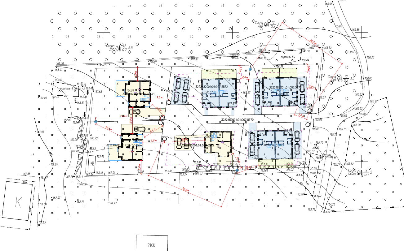
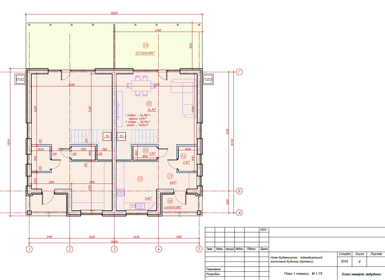
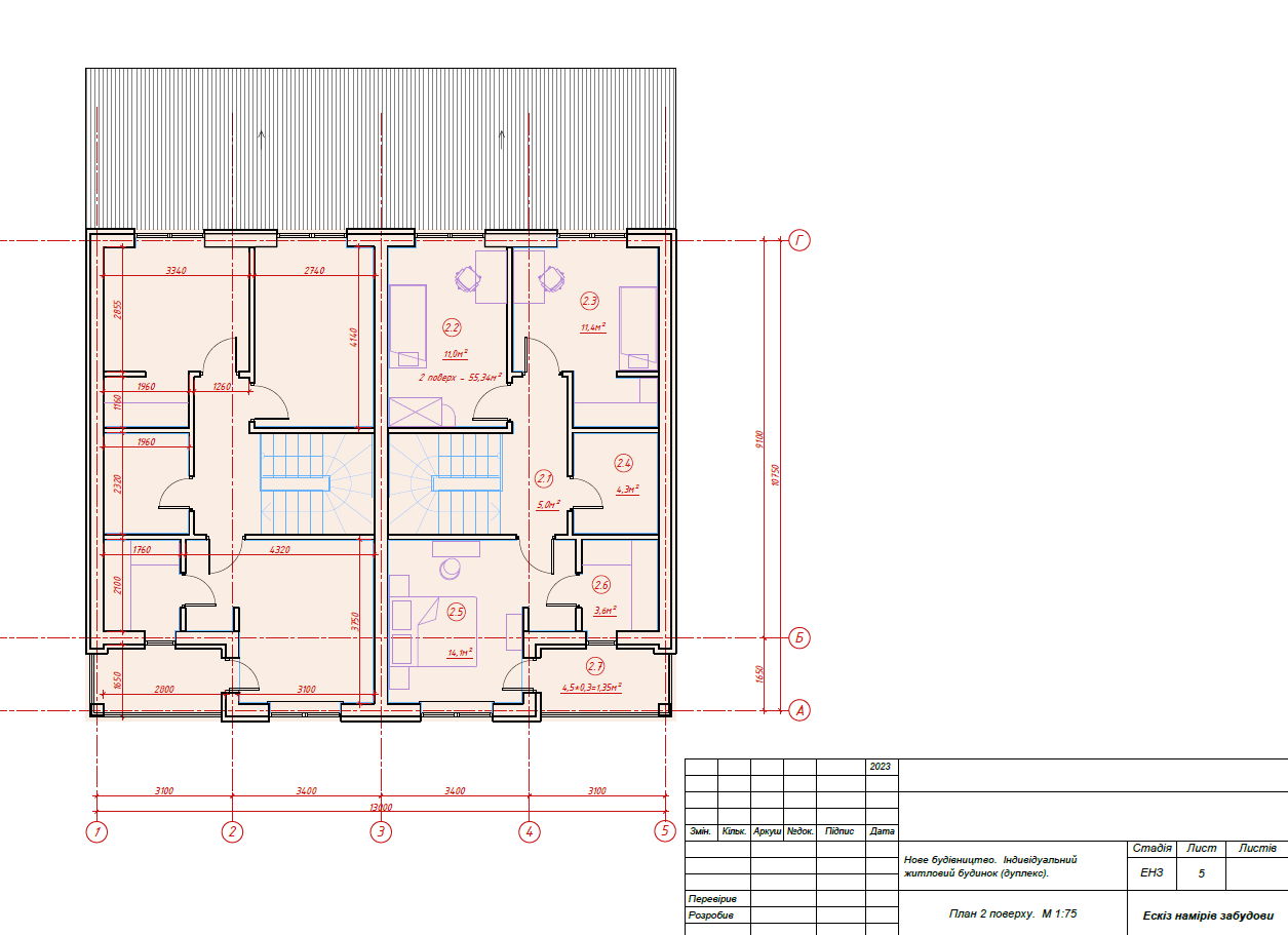
Дуплекс на окремій території Horenychi Walddorf (6 будинків) одразу біля мальовничого лісу. 1й поверх: кухня-вітальня з виходом на криту терасу, санвузол, тех приміщення. 2й поверх: 3 кімнати, санвузол, 2 гардероби, балкон. Фундамент із блоків. Колони, сходи - бетон М200/М300. Стіни: газоблок 300мм, пінопласт 100мм, висота стелі 3м. Вікна WDS 70/3 скла/6 камер. Фасад плитка/штукатурка. Металочерепиця. Електрика 10 кВт, свердловина 74 м, септик з переливом. Ділянка правильної прямокутної форми. Зручно виїзждажати на Житомирську трасу, поблизу багато торгових центрів, в Гореничах є вся необхідна інфраструктура. За бажанням може бути змінено проект, планування, матеріали, виконано внутрішні роботи. План продажу: 1. Продаж ділянки (40% ціни), нотаріальний договір 2. Договір на виконання робіт в 3 етапи: фундамент, стіни/дах, фінальне оздоблення. У продажу усього 3*2 таких дуплексів, тому поспішайте! WhatsApp, Viber, Telegram. ноль 66 7 ноль 8 17 ноль 7 або ноль 5 ноль 5 три 9 4 три 5 ноль
Завантажити .pdf

Власник

Олександр

Оновлено: 11 Березня 2026
Код об'єкта: W-7440352
CAPTCHA Фото Капча
Введіть символи, зображені на малюнку.

Поскаржитися на оголошення

W-7440352 |

Вкажіть причину скарги

Максимальна кількість символів 500
CAPTCHA Фото Капча
Введіть символи, зображені на малюнку.