Реєстрація /

Оренда Торгово-офісне приміщення вул. Левандовська (Анищенка) 14 в Києві / W-7440085

Комерційна нерухомість
Ціна:
57 500* грн.
/місяць
$
1 300 $ (1$ = 44.2 грн.)
1 100 € (1€ = 52.1 грн.)
К-сть кімнат:
4
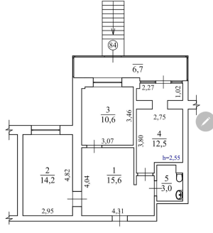
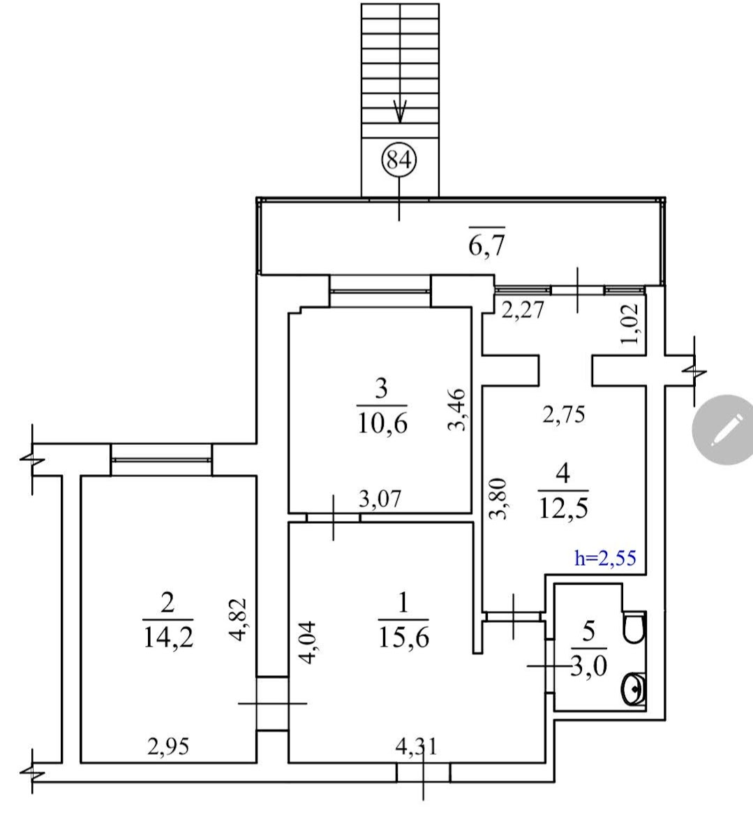
Площа:
65 м²
Тип (серія) будинку:
60-70-х рр.
Поверх/К-сть поверхів:
1/14
Ціна за м²:
884 грн.
Матеріал стін:
Комбінов.
Ремонт (стан):
з євроремонтом
Парковка:
так
Без комісії. Здається в оренду шикарне приміщення з окремим входом в центрі - вулиця Левандовська 14. Без меблів. Планування: 4 кабінети, з/в. Охоронна сигналізація, Відеоспостереження, Кондиціонер. Підлога - ламінат, плитка. Централізоване водопостачання. Комфортне розташування: метро Арсенальна 5 хв, метро Печерська – 10 хв. Чудова транспортна розв'язка та інфраструктура. Завжди вільне паркування. Ідеально для офісу, шоуруму та ін. Власник. Приміщення з гарним ремонтом, яке підійде під ваш бізнес! Правильне та зручне планування.
Завантажити .pdf

Власник

Володимир

Оновлено: 21 Квітня 2026
Код об'єкта: W-7440085
CAPTCHA Фото Капча
Введіть символи, зображені на малюнку.

Поскаржитися на оголошення

W-7440085 |

Вкажіть причину скарги

Максимальна кількість символів 500
CAPTCHA Фото Капча
Введіть символи, зображені на малюнку.

Схожі оголошення