Реєстрація /

Продаж будинку вул. Вільшанська 20 в Києві / W-7440020

8-кімнатний дім
Ціна:
132 300 000* грн.
$
3 000 000 $ (1$ = 44.1 грн.)
2 569 000 € (1€ = 51.5 грн.)
К-сть поверхів:
3
К-сть кімнат:
8
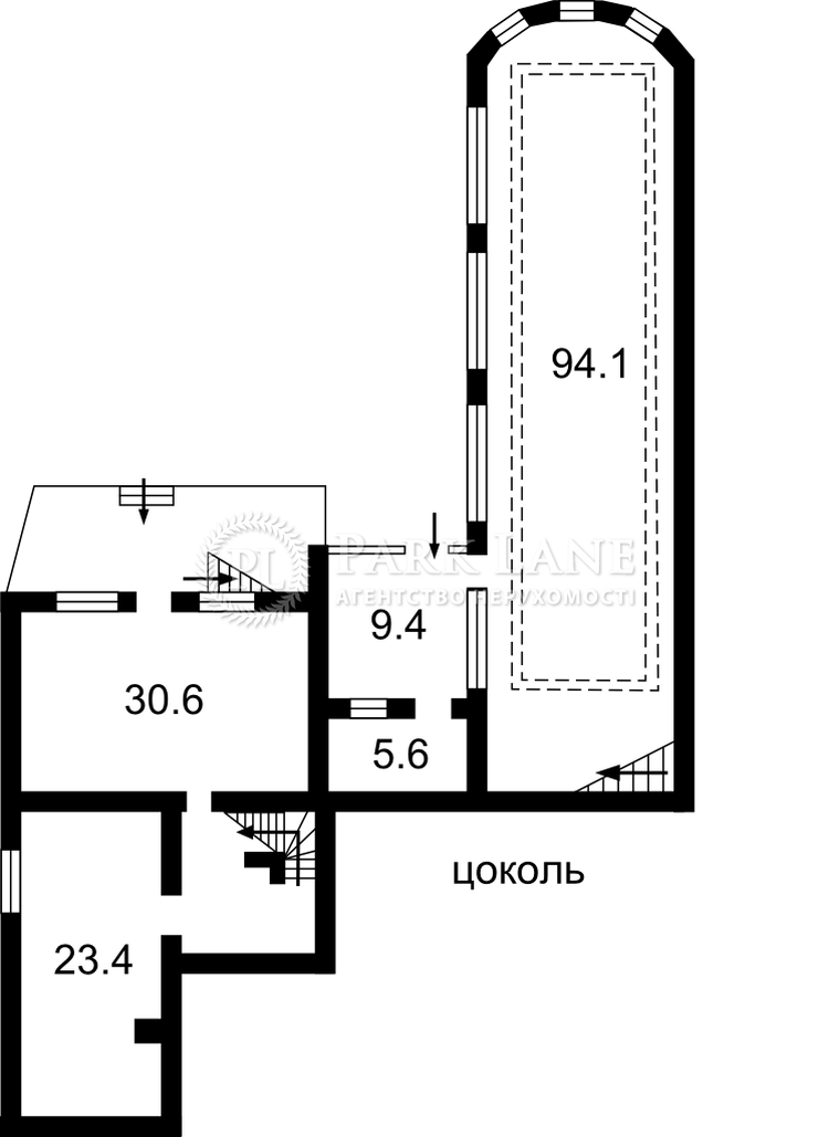
Загальна площа:
626
Площа ділянки:
14 сот.
продам будинок поруч з Ботанічним садом, басейн, більярдна, домашній кінотеатр, гостьовий будиночок, гараж на 6 авто. Інфраструктура (до 500 метрів): Дитячий садок, Ринок, Метро, Парк, зелена зона, Школа, Магазин, кіоск, Супермаркет, ТРЦ, Зупинка транспорту. Комунікації: Асфальтована дорога, Центральна каналізація, Електрика, Вивіз відходів, Газ, Центральний водопровід. Земельна ділянка 14 сот у власності.
Завантажити .pdf

Посередник

Наталія

Оновлено: 10 Березня 2026
Код об'єкта: W-7440020
CAPTCHA Фото Капча
Введіть символи, зображені на малюнку.

Поскаржитися на оголошення

W-7440020 |

Вкажіть причину скарги

Максимальна кількість символів 500
CAPTCHA Фото Капча
Введіть символи, зображені на малюнку.