Реєстрація /

Продаж будинку вул. Костянтинівська Щасливе / W-7439942

4-кімнатний дім
Ціна:
4 848 000* грн.
$
110 000 $ (1$ = 44.07 грн.)
95 200 € (1€ = 50.9 грн.)
К-сть поверхів:
1
К-сть кімнат:
4
Загальна площа:
150
Площа ділянки:
7 сот.
рік будівництва:
2020
Матеріал стін:
Піноблок
Електропостачання:
так
Газопостачання:
Поряд з ділянкою
Водопостачання:
Свердловина
До Києва:
1 км
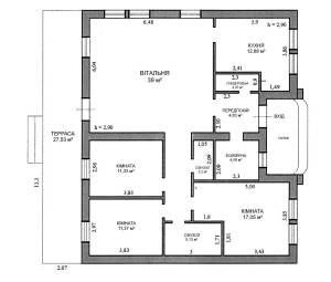
Продається новий житловий будинок без внутрішніх оздоблювальних робіт. Розташований по вул. Костянтинівська, с. Щасливе, Бориспільський район, Київська область. Загальна площа будинку 150 кв.м. (без тераси), житлова - 79 кв.м., кухня - 12,88 кв.м., два с/вузли, бойлерна, гардеробна, тераса - 27,53 кв.м. Висота приміщень - 2,9 м. Площа земельної ділянки 6,68 соток. В будинок заведено 5 кВт електрики, можливе збільшення потужності. Газ по вулиці. Своя скважина. Вода заведена в будинок. Септик на 4 куб. м. Паркан по периметру, бруківка. Поштова адреса, прописка. Поруч кінцева зупинка маршрутки до метро (їхати 20 хвилин), два магазини, спортмайданчик, стадіон, тренажери, дитячий майданчик. Неподалік ліс. У селі: гарна школа, дитячий садок, поліклініка тощо. Продаж від власника.
Завантажити .pdf

Посередник

Сергей Владимирович

Оновлено: 10 Березня 2026
Код об'єкта: W-7439942
CAPTCHA Фото Капча
Введіть символи, зображені на малюнку.

Поскаржитися на оголошення

W-7439942 |

Вкажіть причину скарги

Максимальна кількість символів 500
CAPTCHA Фото Капча
Введіть символи, зображені на малюнку.