Реєстрація /

Оренда Офіс вул. Сім'ї Прахових (Гайдара) в Києві / W-7438778

Комерційна нерухомість
Ціна:
2 205 000* грн.
/місяць
$
50 000 $ (1$ = 44.1 грн.)
43 500 € (1€ = 50.75 грн.)
Профіль:
Площа:
1800 м²
Поверх/К-сть поверхів:
6/8
Ціна за м²:
1 230 грн.
Ремонт (стан):
з євроремонтом
Парковка:
так
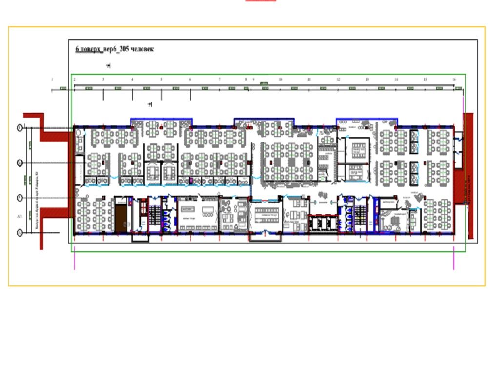
БЕЗ КОМІСІЇ! В оренду пропонується офісне приміщення 1821 м2 в Голосіївському районі на вул. Сім’ї Прахових. Офіс розташований на 6-му поверсі бізнес центру класу, висота стелі — 3,4 м, що створює відчуття простору та комфортні умови для роботи. Планування: зони Open Space, окремі кабінети, простора кухня, санвузли, переговорні кімнати, гардеробна, приміщення під спортзал. Виконано якісний сучасний ремонт. Офіс оснащений системами охоронної та пожежної сигналізації, припливно-витяжною вентиляцією та відеоспостереженням. У бізнес-центрі діє цілодобова охорона, СКД. Поруч знаходяться кафе (у сусідній будівлі), магазини, аптеки, ресторани та зони відпочинку. Вартість оренди вказана без урахування ПДВ, додатково - комунальні послуги. Код оголошення RC-221-082
Завантажити .pdf

Посередник

ALAN

Оновлено: 31 Березня 2026
Код об'єкта: W-7438778
CAPTCHA Фото Капча
Введіть символи, зображені на малюнку.

Поскаржитися на оголошення

W-7438778 |

Вкажіть причину скарги

Максимальна кількість символів 500
CAPTCHA Фото Капча
Введіть символи, зображені на малюнку.

Схожі оголошення