Реєстрація /

Оренда Офіс вул. Нижній Вал в Києві / W-7438711

Комерційна нерухомість
Ціна:
177 000* грн.
/місяць
$
4 000 $ (1$ = 44.15 грн.)
3 450 € (1€ = 51.25 грн.)
К-сть кімнат:
3
Профіль:
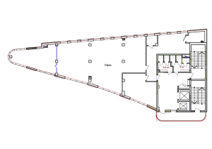
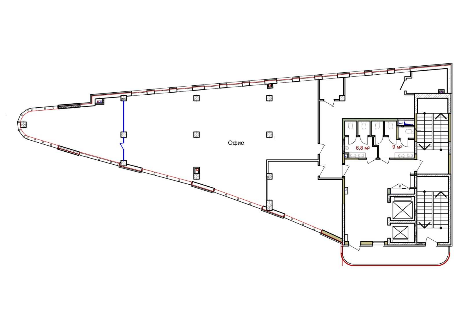
Площа:
260 м²
Поверх:
6
Ціна за м²:
679 грн.
БЕЗ КОМІСІЇ! Оренда офісу 260 м2 у новому бізнес центрі біля метро Контрактова площа. Приміщення займає весь 6 поверх, планування: Open Space, 2 кабінети, зона рецепції, зона кухні, 5 с/в, відкритий балкон. Картковий доступ до будівлі та на поверхи, фізична охорона 24/7, відеоспостереження на поверхах та по периметру будівлі, автономне опалення, LED освітлення. Ремонт: підлога - мармурова плитка, стеля - Армстронг, стіни під фарбування. Будівля оснащена системою центрального кондиціювання, припливно-витяжною системою вентиляції, системою пожежної безпеки, 3 інтернет-провайдери, телефонія. Своє паркування, ліфт пасажирський та вантажний. Орендну ставку вказано без урахування ПДВ, комунальні послуги оплачуються окремо за лічильниками. У будівлі встановлено генератор. Код оголошення RC-198-619.
Завантажити .pdf

Посередник

ALAN

Оновлено: 25 Березня 2026
Код об'єкта: W-7438711
CAPTCHA Фото Капча
Введіть символи, зображені на малюнку.

Поскаржитися на оголошення

W-7438711 |

Вкажіть причину скарги

Максимальна кількість символів 500
CAPTCHA Фото Капча
Введіть символи, зображені на малюнку.

Схожі оголошення