Реєстрація /

Оренда Офіс вул. Нижній Вал в Києві / W-7438710

Комерційна нерухомість
Ціна:
178 000* грн.
/місяць
$
4 000 $ (1$ = 44.45 грн.)
3 440 € (1€ = 51.75 грн.)
К-сть кімнат:
3
Профіль:
Площа:
265 м²
Поверх:
3
Ціна за м²:
670 грн.
Парковка:
так
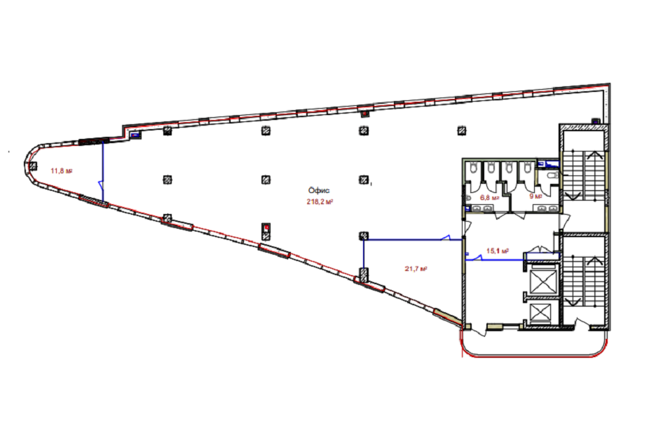
БЕЗ КОМІСІЇ! Оренда офісу 265 м2 у Новому БЦ біля метро Контрактова площа. Офіс з ремонтом, займає весь 3 поверх, планування: Open Space (можливе перепланування), зона рецепції, переговорна кімната, 2 кабінети, мебльована кухня, 4 с/в, великий балкон. Картковий доступ до будівлі та на поверхи, фізична охорона 24/7, відео спостереження на поверхах та по периметру будівлі, автономне опалення, LED освітлення. Ремонт: підлога - мармурова плитка, стеля - Армстронг, стіни під фарбування. Будівля оснащена системою центрального кондиціювання, припливно-витяжною системою вентиляції, системою пожежної безпеки, 3 інтернет-провайдери, телефонія. Своє паркування, ліфт пасажирський та вантажний. Орендна ставка з урахуванням ПДВ та експлуатаційних платежів, комунальні послуги за лічильниками оплачуються окремо. У будівлі встановлено генератор. Код оголошення RC-080-942.
Завантажити .pdf

Посередник

ALAN

Оновлено: 25 Травня 2026
Код об'єкта: W-7438710
CAPTCHA Фото Капча
Введіть символи, зображені на малюнку.

Поскаржитися на оголошення

W-7438710 |

Вкажіть причину скарги

Максимальна кількість символів 500
CAPTCHA Фото Капча
Введіть символи, зображені на малюнку.

Схожі оголошення