Реєстрація /

Оренда Офіс вул. Саксаганського 53 в Києві / W-7438703

Комерційна нерухомість
Ціна:
1 224 000* грн.
/місяць
$
27 700 $ (1$ = 44.12 грн.)
24 000 € (1€ = 51.05 грн.)
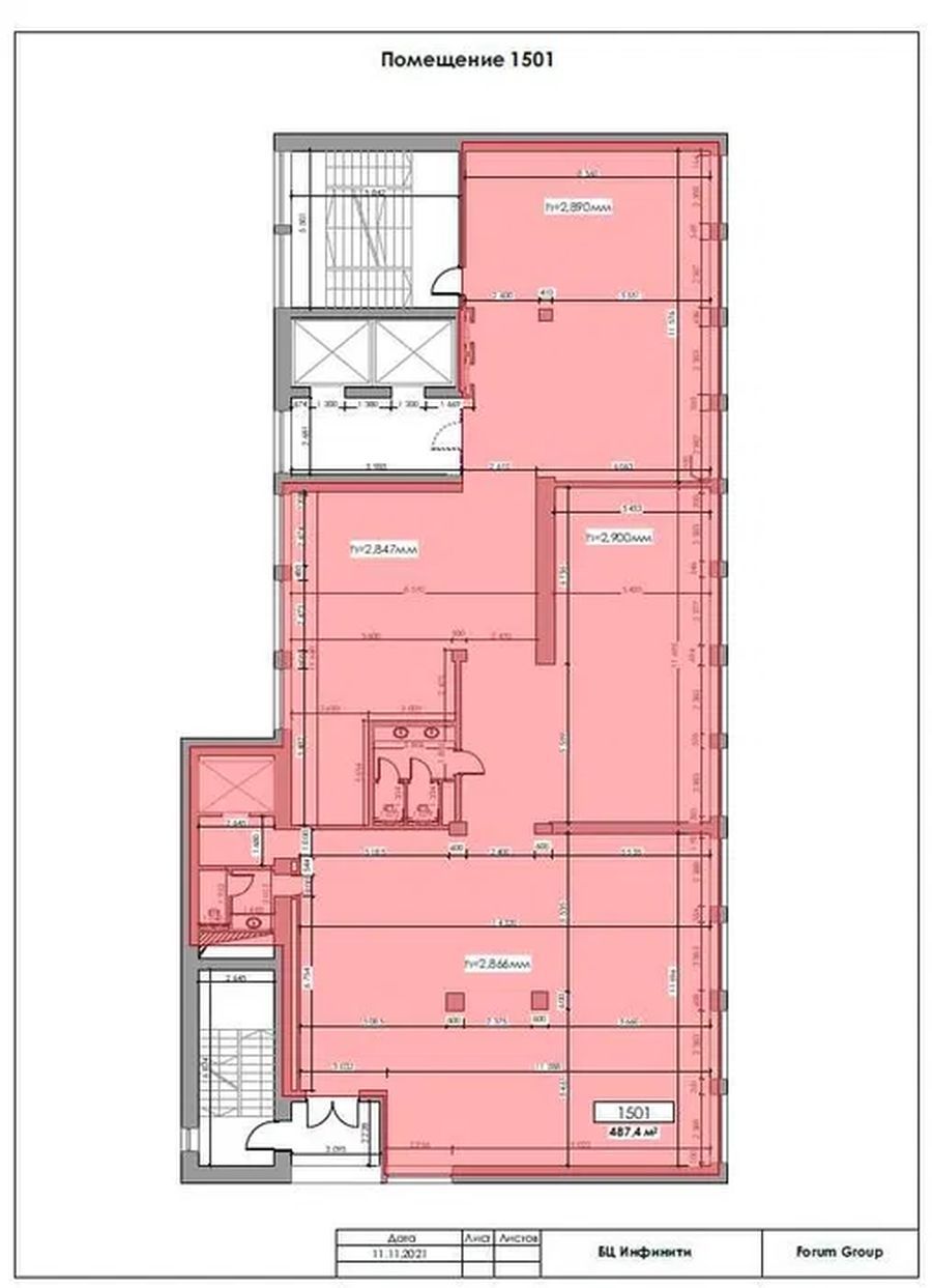
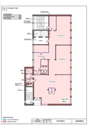
Здається в оренду офіс у БЦ Infinity класу «А» з панорамними вікнами та видом на діловий центр міста. Площа: Загальна 976 м² Розрахункова 1122,4 м² Локація: Корпус 1, 5 та 6 поверх Формат приміщення: Зонований Open Space з ремонтом: Інженерні системи та переваги: Власна котельня Система безперебійного електропостачання (промисловий генератор на весь БЦ) Мультізональна система вентиляції та кондиціонування Інтернет оптоволокно Система відеоспостереження та протипожежної безпеки Сучасні ліфти KONE Цілодобовий доступ (24/7), охорона і контроль доступу Інфраструктура БЦ Infinity: Вишукане лобі з двоповерховим атріумом 2 кавярні з авторським меню Тераса на даху з панорамою міста Тренажерна зала та масажний кабінет Лаунж-зона з басейном Затишний дворик з ландшафтним дизайном Сучасне укриття та справжнє бомбосховище Комерційні умови: Орендна ставка: 14$/м² + ПДВ OPEX (Операційні витрати): 6, 60 $/м² +ПДВ Загальна вартість (з ПДВ): 27 743$ Комунальні послуги оплачуються окремо
Завантажити .pdf

Посередник

Юрій

Оновлено: 27 Березня 2026
Код об'єкта: W-7438703
CAPTCHA Фото Капча
Введіть символи, зображені на малюнку.

Поскаржитися на оголошення

W-7438703 |

Вкажіть причину скарги

Максимальна кількість символів 500
CAPTCHA Фото Капча
Введіть символи, зображені на малюнку.

Схожі оголошення