Реєстрація /

Продаж Офіс Приймаченко Марії бульв. (Лихачова) 6 в Києві / W-7435488

Комерційна нерухомість
Ціна:
7 448 000* грн.
$
169 000 $ (1$ = 44.07 грн.)
146 000 € (1€ = 50.9 грн.)
К-сть кімнат:
7
Профіль:
Площа:
128 м²
Тип (серія) будинку:
"хрущівський проект"
Поверх/К-сть поверхів:
1/5
Ціна за м²:
58 200 грн.
Матеріал стін:
Цегла
Ремонт (стан):
з косметичним ремонтом
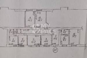
Офіс 100 м від метро Звіринецька | Окремий вхід | 7 кабінетів Пропонується до продажу офісне приміщення за адресою: бульвар Марії Приймаченко, 6 — у діловому центрі Печерська, всього 100 метрів від станції метро Звіринецька. Локація забезпечує зручну логістику для співробітників і клієнтів. Додаткова перевага — безкоштовна парковка поруч із будинком для персоналу та відвідувачів. Характеристики приміщення цокольний поверх, при цьому всі вікна над рівнем землі окрема фасадна вхідна група кабінетна система: 7 окремих кабінетів, ресепшн господарське приміщення санвузол Офіс повністю готовий до роботи: встановлена система кондиціонування охоронна сигналізація розведена комп’ютерна мережа та телефонія наявні офісні меблі решітки на вікнах Всі комунікації міські: опалення, електроенергія, водопостачання. Приміщення ідеально підійде для IT-компанії, юридичної фірми, медичного або освітнього центру, представництва чи сервісного бізнесу.
Завантажити .pdf

Посередник

Павло

Оновлено: 18 Березня 2026
Код об'єкта: W-7435488
CAPTCHA Фото Капча
Введіть символи, зображені на малюнку.

Поскаржитися на оголошення

W-7435488 |

Вкажіть причину скарги

Максимальна кількість символів 500
CAPTCHA Фото Капча
Введіть символи, зображені на малюнку.

Схожі оголошення

  • Продаж Нежитлове приміщення вул. Інститутська в Києві / P-34238 (Нежитлове приміщення, вул. Інститутська) 7 492 000* грн.

    Продаж Нежитлове приміщення вул. Інститутська в Києві / P-34238

  • Продаж Офіс вул. Панаса Мирного 9 в Києві / W-7293746 (Офіс, вул. Панаса Мирного) 7 295 000* грн.

    Продаж Офіс вул. Панаса Мирного 9 в Києві / W-7293746

  • Продаж Нежитлове приміщення вул. Верхогляда Андрія (Драгомирова Михайла) в Києві / J-33465 (Нежитлове приміщення, вул. Верхогляда Андрія (Драгомирова Михайла)) 7 404 000* грн.

    Продаж Нежитлове приміщення вул. Верхогляда Андрія (Драгомирова Михайла) в Києві / J-33465

  • Продаж Нежитлове приміщення вул. Дарвіна в Києві / R-69280 (Нежитлове приміщення, вул. Дарвіна) 7 051 000* грн.

    Продаж Нежитлове приміщення вул. Дарвіна в Києві / R-69280

  • Продаж Офіс Печерський узвіз 18 в Києві / W-7383016 (Офіс, Печерський узвіз) 7 492 000* грн.

    Продаж Офіс Печерський узвіз 18 в Києві / W-7383016

  • Продаж Нежитлове приміщення вул. Цитадельна в Києві / C-109919 (Нежитлове приміщення, вул. Цитадельна) 7 933 000* грн.

    Продаж Нежитлове приміщення вул. Цитадельна в Києві / C-109919

  • Продаж Нежитлове приміщення вул. Коновальця Євгена (Щорса) в Києві / I-38812 (Нежитлове приміщення, вул. Коновальця Євгена (Щорса)) 7 272 000* грн.

    Продаж Нежитлове приміщення вул. Коновальця Євгена (Щорса) в Києві / I-38812

  • Продаж Нежитлове приміщення вул. Коновальця Євгена (Щорса) в Києві / P-34187 (Нежитлове приміщення, вул. Коновальця Євгена (Щорса)) 7 272 000* грн.

    Продаж Нежитлове приміщення вул. Коновальця Євгена (Щорса) в Києві / P-34187

  • Продаж Магазин вул. Підвисоцького Професора в Києві / R-32481 (Магазин, вул. Підвисоцького Професора) 6 831 000* грн.

    Продаж Магазин вул. Підвисоцького Професора в Києві / R-32481

  • Продаж Офіс вул. Лютеранська в Києві / R-65124 (Офіс, вул. Лютеранська) 7 933 000* грн.

    Продаж Офіс вул. Лютеранська в Києві / R-65124

  • Продаж Нежитлове приміщення вул. Саперне поле в Києві / P-33995 (Нежитлове приміщення, вул. Саперне поле) 7 997 000* грн.

    Продаж Нежитлове приміщення вул. Саперне поле в Києві / P-33995

  • Продаж Нежитлове приміщення вул. Саперне поле 5 в Києві / W-7436255 (Нежитлове приміщення, вул. Саперне поле) 7 999 000* грн.

    Продаж Нежитлове приміщення вул. Саперне поле 5 в Києві / W-7436255