Реєстрація /

Оренда Офіс вул. Бульварно-Кудрявська (Воровського) 22 в Києві / W-7435458

Комерційна нерухомість
Ціна:
522 000* грн.
/місяць
$
11 800 $ (1$ = 44.3 грн.)
10 200 € (1€ = 51.4 грн.)
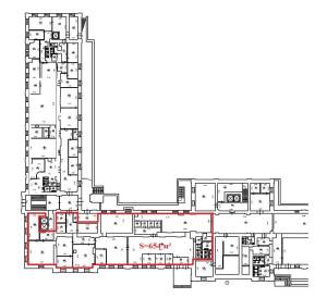
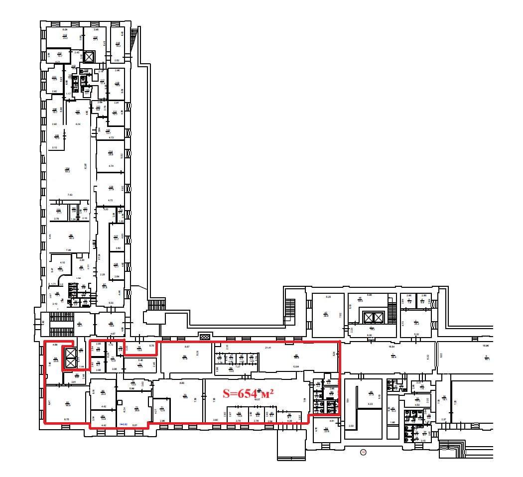
Оренда фасадного приміщення в Бізнес-центр «Ренесанс» вул. Бульварно-Кудрявська 22-24 Вакантна площа: 654,86 м² - цокольний поверх Приміщення обладнене під відділення банку Окрема вхідна група Місце, де народжуються успішні історії Тут всесвітньо відомі компанії починали свій шлях в Україні Традиції глобального бізнесу + інновації Зручна транспортна розв’язка — щоденна продуктивність гарантована! Технічне оснащення: • Трансформаторна підстанція (2 х 630 кВт), UPS ️ • Оптоволоконний інтернет • Безпека: сигналізація відеоспостереження охорона 24/7 Орендна ставка: 18 у.о./м² (з ПДВ та OPEX). Комунальні платежі — за фактом споживання 11790дол
Завантажити .pdf

Посередник

Юрій

Оновлено: 24 Березня 2026
Код об'єкта: W-7435458
CAPTCHA Фото Капча
Введіть символи, зображені на малюнку.

Поскаржитися на оголошення

W-7435458 |

Вкажіть причину скарги

Максимальна кількість символів 500
CAPTCHA Фото Капча
Введіть символи, зображені на малюнку.

Схожі оголошення