Реєстрація /

Оренда Офіс вул. Іллінська 8 в Києві / W-7434907

Комерційна нерухомість
Ціна:
420 000* грн.
/місяць
$
9 700 $ (1$ = 43.25 грн.)
8 200 € (1€ = 51.15 грн.)
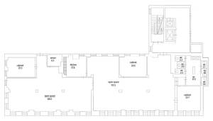
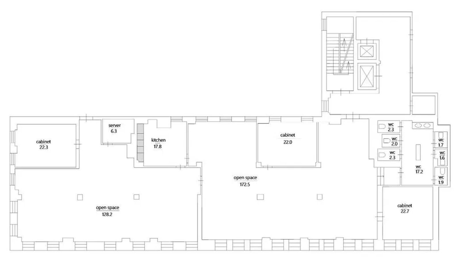
Київ, вул. Іллінська, 8 (Поділ) Контрактова площа, Поштова площа Вакантна площа 425,5 м2 (5 поверх) Система кондиціонування,телекомунікаційна система, пожежна та охоронна сигналізація. Технічний стан приміщення – готовий до заселення. Система центрального кондиціонування чиллер-фанкойл. Територія БЦ і вхідні групи охороняються цілодобово. Діє система контролю доступу. Доступ для орендарів 24 години на добу / 7 днів на тиждень. Орендована площа 425,5 х 1,15 = 489,33 m2 1,1 = коефіцієнт площ загального користування Орендна ставка за 1м2 15,0 USD з пдв Сервісні послуги за 1м2 4,8 USD з пдв Комунальні послуги - За лічильниками Орендована площа 489,33 m2 Орендний платіж за 1 місяць 15,0 х 489,33 - 7339,95 з пдв Сервісні послуги за 1 місяць 4,8 х 489,33 - 2348,78 зпдв Гарантійний платіж 2х місячна орендна ставка, у кінці терміну повертається 9688,73 USD + комунальні
Завантажити .pdf

Посередник

Ярослав

Оновлено: 7 Лютого 2026
Код об'єкта: W-7434907
CAPTCHA Фото Капча
Введіть символи, зображені на малюнку.

Поскаржитися на оголошення

W-7434907 |

Вкажіть причину скарги

Максимальна кількість символів 500
CAPTCHA Фото Капча
Введіть символи, зображені на малюнку.

Схожі оголошення