Реєстрація /

Оренда Офіс вул. Велика Васильківська (Червоноармійська) в Києві / W-7433769

Комерційна нерухомість
Ціна:
239 000* грн.
/місяць
$
5 380 $ (1$ = 44.35 грн.)
4 640 € (1€ = 51.4 грн.)
К-сть кімнат:
4
Профіль:
Площа:
270 м²
Поверх:
3
Ціна за м²:
883 грн.
Ремонт (стан):
з євроремонтом
Парковка:
так
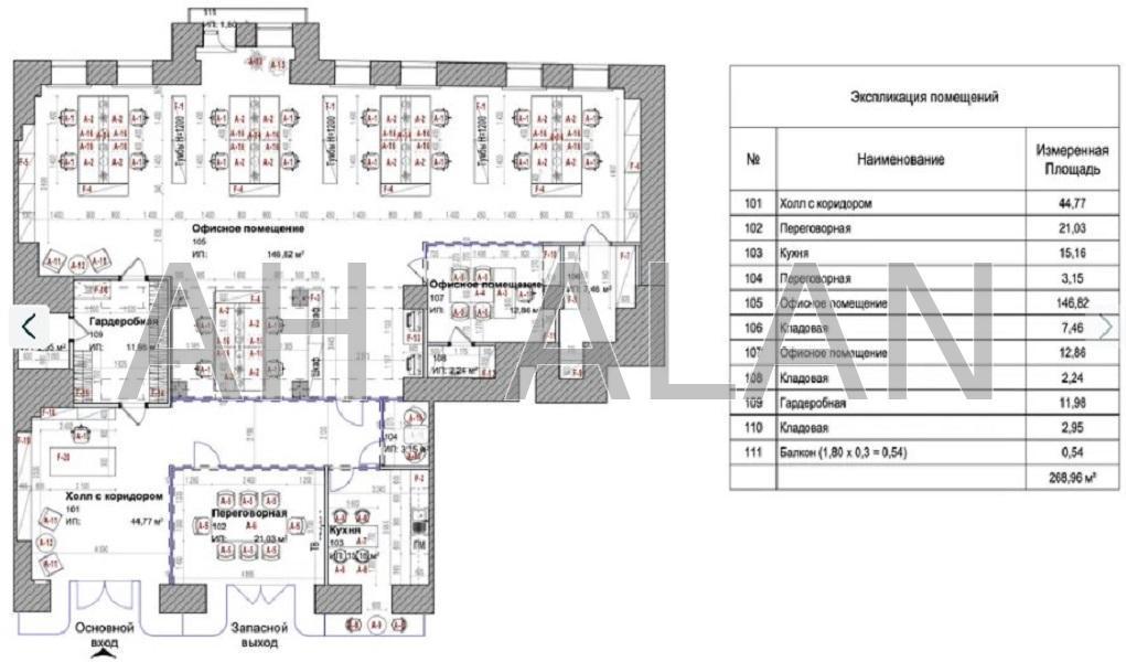
БЕЗ КОМІСІЇ! Оренда офісу 270 м2 в центрі Печерського району на вулиці Басейна. Приміщення розташоване на 3-му поверсі Бізнес центру, планування: Open space, переговорна кімната, кабінет, скай-рум, великий хол із зоною рецепції, кухня, вбиральня, підсобне приміщення, балкон, серверна. Повністю мебльовано на 22 робочі місця, оснащене центральною системою вентиляції та кондиціювання, пожежною сигналізацією, відеоспостереження по периметру будівлі, фізична охорона. Вартість вказана з урахуванням ПДВ, додатково сплачуються комунальні послуги. Код оголошення RC-161-278.
Завантажити .pdf

Посередник

ALAN

Оновлено: 12 Березня 2026
Код об'єкта: W-7433769
CAPTCHA Фото Капча
Введіть символи, зображені на малюнку.

Поскаржитися на оголошення

W-7433769 |

Вкажіть причину скарги

Максимальна кількість символів 500
CAPTCHA Фото Капча
Введіть символи, зображені на малюнку.

Схожі оголошення