Реєстрація /

Оренда Офіс вул. Ділова (Димитрова) 6 в Києві / W-7433487

Комерційна нерухомість
Ціна:
139 000* грн.
/місяць
$
3 200 $ (1$ = 43.39 грн.)
2 690 € (1€ = 51.55 грн.)
К-сть кімнат:
6
Профіль:
Площа:
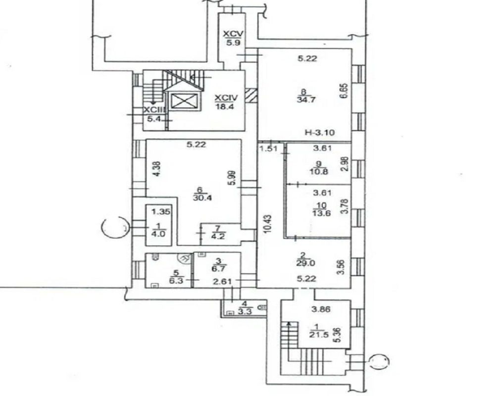
213 м²
Поверх:
1
Ціна за м²:
651 грн.
Ремонт (стан):
з косметичним ремонтом
Парковка:
так
Оренда офісу 213 м2 в центрі Печерського району на вулиці Ділова. Нежитловий фонд, 1 поверх з фасадним входом, другий вхід з двору. Планування: 4 кабінети, 2 підсобні приміщення, хол із зоною рецепції, 2 с/в з душовою кабіною, міні-кухня. Приміщення оснащене кондиціюванням, пожежною та охоронною сигналізаціями. Задається без меблів. Додатково – комунальні платежі.
Завантажити .pdf

Посередник

ALAN

Оновлено: 10 Лютого 2026
Код об'єкта: W-7433487
CAPTCHA Фото Капча
Введіть символи, зображені на малюнку.

Поскаржитися на оголошення

W-7433487 |

Вкажіть причину скарги

Максимальна кількість символів 500
CAPTCHA Фото Капча
Введіть символи, зображені на малюнку.

Схожі оголошення