Реєстрація /

Оренда Офіс вул. Володимирська 65 в Києві / W-7430609

Комерційна нерухомість
Ціна:
47 400* грн.
/місяць
$
1 100 $ (1$ = 43.1 грн.)
915 € (1€ = 51.8 грн.)
К-сть кімнат:
3
Профіль:
Площа:
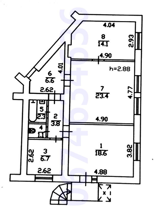
80 м²
Поверх:
2
Ціна за м²:
592 грн.
Матеріал стін:
Цегла
Ремонт (стан):
з євроремонтом
АРЕНДА ОТЛИЧНОГО ОФИСА С МЕБЕЛЬЮ В ЦЕНТРЕ! - г. Киев, Исторический и престижный Центр; - ул. Владимирская 65, фасадный дом; - метро площадь Украинских Героев (Толстого) - 5 мин; - метро Университет - 10 мин; - вход через фасадное аккуратное парадное, 2 этаж, жилой фонд; - аренда современного офиса, помещения 100 м² в двух уровнях; - рецепция, открытое пространство, 2 отдельных кабинета, оборудованная мини-кухня, санузел, гардероб, балконы; - коммерческий ремонт и мебель отличного качества, окна (стеклопакеты, решетки, жалюзи), противопожарная и охранная сигнализации, Интернет (компьютерная сеть или WiFi); - 1100 у.е/месяц; - дополнительно коммунальные платежи по тарифам жилого фонда; - дополнительно залоговая сумма в размере месячной аренды; - дополнительно 50 % (комиссионные риелтору) от Арендатора (единоразово); +380674634636 Приглашаем к сотрудничеству собственников недвижимости Посмотреть другие предложения нажимайте на опцию "Все объявления пользователя"
Завантажити .pdf

Посередник

Мила

Оновлено: 28 Січня 2026
Код об'єкта: W-7430609
CAPTCHA Фото Капча
Введіть символи, зображені на малюнку.

Поскаржитися на оголошення

W-7430609 |

Вкажіть причину скарги

Максимальна кількість символів 500
CAPTCHA Фото Капча
Введіть символи, зображені на малюнку.

Схожі оголошення