Реєстрація /

Продаж Нежитлове приміщення вул. Хмельницького Богдана 50 в Києві / W-7428032

Комерційна нерухомість
Ціна:
15 440 000* грн.
$
350 000 $ (1$ = 44.1 грн.)
300 000 € (1€ = 51.5 грн.)
К-сть кімнат:
9
Площа:
188.4 м²
Тип (серія) будинку:
доревол.
Поверх/К-сть поверхів:
цоколь/5
Ціна за м²:
81 900 грн.
Матеріал стін:
Цегла
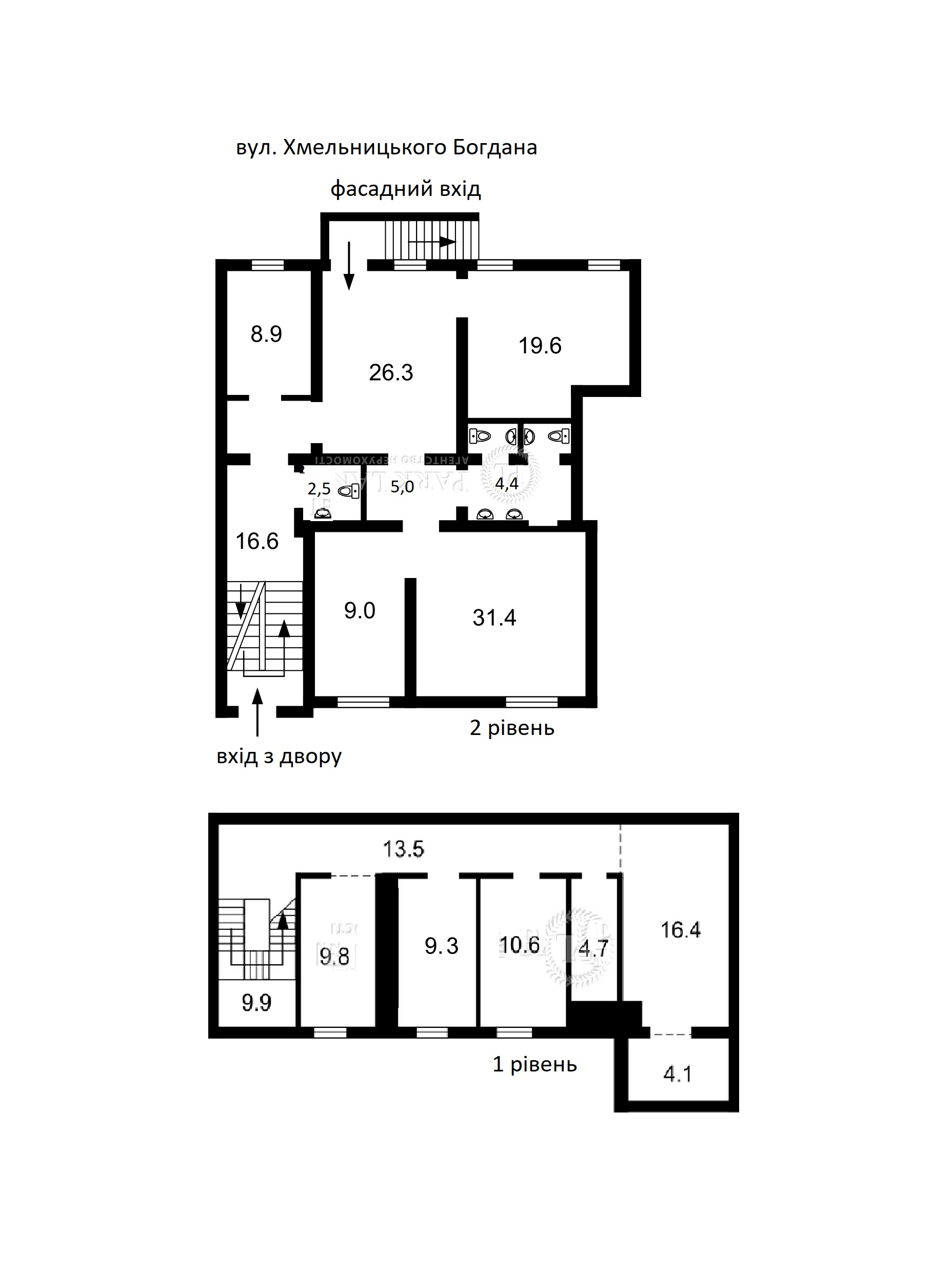
СВІТЛО НЕВИМИКАЮТЬ! Центр Супер локація! Прохідне місто! Фасадний вхід! Адреса: вул. Хмельницького Бoгдана буд.50 нежитлове приміщення цоколь, два рівня. 2рів. цокольний: 5 приміщень, 3 сан.вуз.; h=2,65m. 1рів. цокольний: 4 приміщення (з урахуванням кухни), h=2,5m. Під любий вид діяльності: навчальний чи реабілітаційний центр/ офіс/ майстерня/ салон краси/ маркет/ аптека/ кафе/ ресторан/ кальян-бар/ клуб (було кафе-бар з літн.майданом) Приточно-витяжна вентиляційна система, світло більше 50кВт - світло не вимикають!, хол.вода міська лічильник (офіц.договору нема), каналізація міська, (опалення нема) Вхідная група: фасад+двір (можливо відновити вхід ще з парадного). Стан: потребує реновацій. Поруч метро Золоті Ворота, метро Університет, Володимирськийсобор, посольства, держ.установи, преміум готелі, велотрек, Національна опера зона денно-вечірнього відпочинку
Завантажити .pdf

Посередник

Наталия

Оновлено: 10 Березня 2026
Код об'єкта: W-7428032
CAPTCHA Фото Капча
Введіть символи, зображені на малюнку.

Поскаржитися на оголошення

W-7428032 |

Вкажіть причину скарги

Максимальна кількість символів 500
CAPTCHA Фото Капча
Введіть символи, зображені на малюнку.

Схожі оголошення

  • Продаж Нежитлове приміщення вул. Глибочицька в Києві / P-32146 (Нежитлове приміщення, вул. Глибочицька) 15 440 000* грн.

    Продаж Нежитлове приміщення вул. Глибочицька в Києві / P-32146

  • Продаж Офіс вул. Ярославів Вал в Києві / H-51057 (Офіс, вул. Ярославів Вал) 14 220 000* грн.

    Продаж Офіс вул. Ярославів Вал в Києві / H-51057

  • Продаж Нежитлове приміщення вул. Кониського Олександра (Тургенєвська) в Києві / P-32479 (Нежитлове приміщення, вул. Кониського Олександра (Тургенєвська)) 14 990 000* грн.

    Продаж Нежитлове приміщення вул. Кониського Олександра (Тургенєвська) в Києві / P-32479

  • Продаж Нежитлове приміщення вул. Глибочицька в Києві / C-109867 (Нежитлове приміщення, вул. Глибочицька) 16 540 000* грн.

    Продаж Нежитлове приміщення вул. Глибочицька в Києві / C-109867

  • Продаж Ресторан вул. В.Житомирська в Києві / A-87471 (Ресторан, вул. В.Житомирська) 15 440 000* грн.

    Продаж Ресторан вул. В.Житомирська в Києві / A-87471

  • Продаж Нежитлове приміщення вул. Костельна в Києві / D-40683 (Нежитлове приміщення, вул. Костельна) 14 550 000* грн.

    Продаж Нежитлове приміщення вул. Костельна в Києві / D-40683

  • Продаж Автомийка Вірського Павла бул. (Саратовська) в Києві / E-40719 (Автомийка, Вірського Павла бул. (Саратовська)) 15 440 000* грн.

    Продаж Автомийка Вірського Павла бул. (Саратовська) в Києві / E-40719

  • Продаж Нежитлове приміщення вул. Велика Васильківська (Червоноармійська) в Києві / B-107923 (Нежитлове приміщення, вул. Велика Васильківська (Червоноармійська)) 16 790 000* грн.

    Продаж Нежитлове приміщення вул. Велика Васильківська (Червоноармійська) в Києві / B-107923

  • Продаж Нежитлове приміщення вул. Глибочицька 73 в Києві / W-7437698 (Нежитлове приміщення, вул. Глибочицька) 15 440 000* грн.

    Продаж Нежитлове приміщення вул. Глибочицька 73 в Києві / W-7437698

  • Продаж Офісно-складське приміщення вул. Лук'янівська 1 в Києві / W-7437240 (Офісно-складське приміщення, вул. Лук'янівська) 14 110 000* грн.

    Продаж Офісно-складське приміщення вул. Лук'янівська 1 в Києві / W-7437240

  • Продаж Офіс вул. Бульварно-Кудрявська (Воровського) в Києві / M-37215 (Офіс, вул. Бульварно-Кудрявська (Воровського)) 16 980 000* грн.

    Продаж Офіс вул. Бульварно-Кудрявська (Воровського) в Києві / M-37215

  • Продаж Нежитлове приміщення вул. Чикаленка Євгена (Пушкінська) в Києві / D-40596 (Нежитлове приміщення, вул. Чикаленка Євгена (Пушкінська)) 15 880 000* грн.

    Продаж Нежитлове приміщення вул. Чикаленка Євгена (Пушкінська) в Києві / D-40596