Реєстрація /

Оренда Офіс вул. Гетьмана Вадима (Індустріальна) 6 в Києві / W-7427766

Комерційна нерухомість
Ціна:
1 994 000* грн.
/місяць
$
47 000 $ (1$ = 42.43 грн.)
40 000 € (1€ = 49.9 грн.)
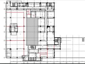
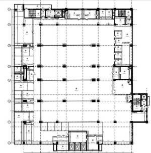
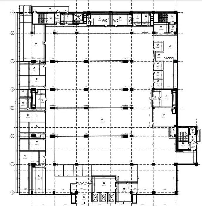
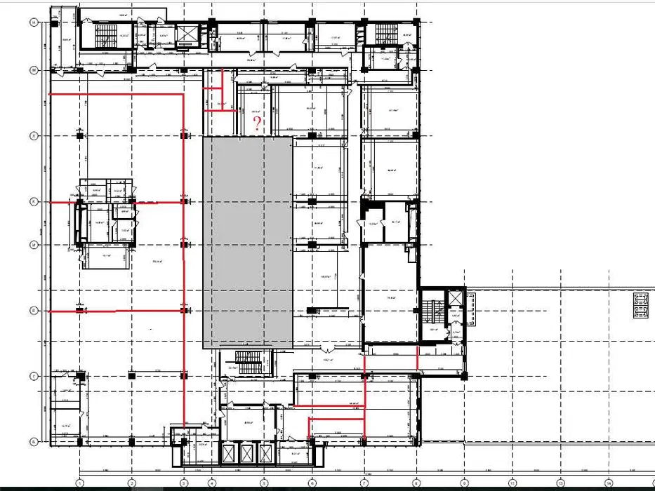
Автономное энергообеспечение!!! При отключении подачи централизованного электричества, автоматически включается дизельный генератор, который обеспечивает комфортную, бесперебойную работу офиса !!! Бизнес центр Соsmo Multimoll , на базе торгово-развлекательного комплекса Соsmo multimoll, предлагает офисные помещения с ремонтом Лофт и развитой инфраструктурой. Адрес: В. Гетьмана, 6, до метро Шулявская, 7 минут пеше. Арендаторы могут пользоваться большим паркингом, ресторанами, кафе. В здании имеется комплекс из самых больших конференц залов в Киеве, а также отель, для размещения гостей и партнеров. Предлагаем офисное помещение, которое размещено на 6 и 7 этажах и занимает 4700 кв.м. Открытая планировка с комнатами переговоров, отдельные кабинеты, зона рецепции, просторная оборудованная кухня, 2 больших сан. узла, гардеробная, на каждом этаже. Арендная ставка - 4 долл/кв.метр + НДС Орех - 6 долл/кв.метр + НДС Коммунальные оплачиваются отдельно.
Завантажити .pdf

Посередник

Ярослав

Оновлено: 17 Грудня 2025
Код об'єкта: W-7427766
CAPTCHA Фото Капча
Введіть символи, зображені на малюнку.

Поскаржитися на оголошення

W-7427766 |

Вкажіть причину скарги

Максимальна кількість символів 500
CAPTCHA Фото Капча
Введіть символи, зображені на малюнку.

Схожі оголошення