Реєстрація /

Оренда Офіс вул. Почайнинська в Києві / W-7427563

Комерційна нерухомість
Ціна:
1 207 000* грн.
/місяць
$
28 500 $ (1$ = 42.35 грн.)
24 200 € (1€ = 49.85 грн.)
Профіль:
Площа:
1500 м²
Ціна за м²:
804 грн.
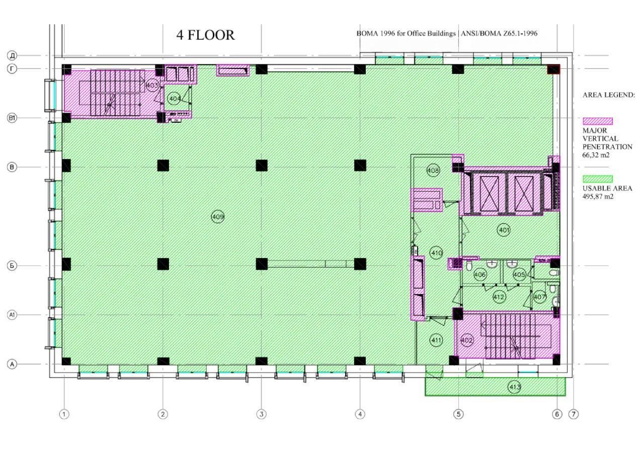
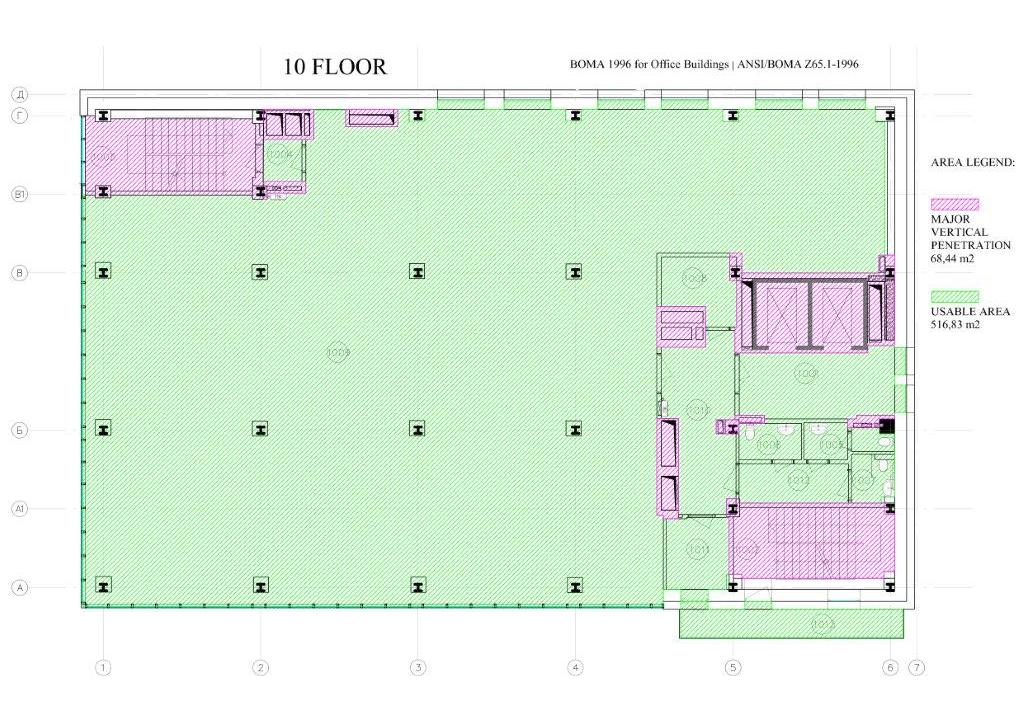
Оренда офісного приміщення в новому Бізнес-центрі на вул. Почайнинська. Поверхи з 4 по 10-й. Площа окремого поверху - 500 м2 . Опенспейс, і санвузли. За потреби, планування під вимоги орендаря. Можливо орендувати разом декілька поверхів поряд (до 3000 м2). Фасадний презентабельний вхід. Всі коммунікаціі, системи вентиляціі і кондиціонування, охорона, система контролю доступу. Розвинута інфраструктура. Метро Контрактова площа - 10 хвилин. Вартість - 18 дол/м2 плюс ПДВ. Додатково тільки комунальні платежі. Без комісії.
Завантажити .pdf

Посередник

Олександр

Оновлено: 13 Грудня 2025
Код об'єкта: W-7427563
CAPTCHA Фото Капча
Введіть символи, зображені на малюнку.

Поскаржитися на оголошення

W-7427563 |

Вкажіть причину скарги

Максимальна кількість символів 500
CAPTCHA Фото Капча
Введіть символи, зображені на малюнку.

Схожі оголошення