Реєстрація /

Продаж квартири Берестейський просп. (Перемоги просп.) 121а в новобудові в Києві / W-7426193

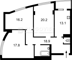
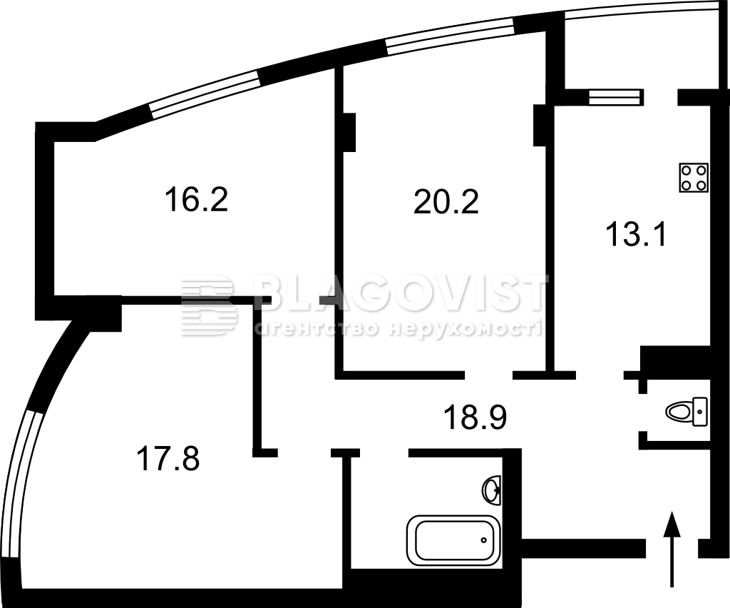
4-кімнатна квартира
Ціна:
7 526 000* грн.
$
178 000 $ (1$ = 42.28 грн.)
151 000 € (1€ = 49.95 грн.)
Житловий комплекс:
К-сть кімнат/Розташування:
Площа (загальна/житлова/кухні):
95/54.2/13.3
Поверх/К-сть поверхів:
12/25
Тип (серія) будинку:
спецпроект 2006-2010 рр.
Матеріал стін:
Цегла
Матеріал підлоги:
Паркет
Матеріал перекриття:
Залізобетон
Кількість, тип санвузлів:
1, Розд.
Ремонт (стан):
з євроремонтом
меблі
балкон
Квартира дуже світла та затишна з гарним видом на місто. У квартирі виконаний дійсно дуже якісний ремонт із дорогих та натуральних матеріалів у стилі Прованс, надаючи відчуття затишку та розкоші. У кожній кімнаті кондиціонер, дубова підлога та столярня, якісна сантехніка. Авторська кухня повністю укомплектована ексклюзивною побутовою технікою, все у відмінному стані, дійсно якісно та дорого. Будинок бізнес-класу 2010 року, має гарний стан, під'їзди охайні, закрита територія зі шлагбаумом, підземний паркінг, парковка/безкошт. Поруч супермаркет "Новус", ринок, маршрутні таксі, парк, озера і ліс. Транспорт: ст.М"Житомирська" - 5хв.
Завантажити .pdf

Посередник

Сімонов Олег

Оновлено: 5 Грудня 2025
Код об'єкта: W-7426193
CAPTCHA Фото Капча
Введіть символи, зображені на малюнку.

Поскаржитися на оголошення

W-7426193 |

Вкажіть причину скарги

Максимальна кількість символів 500
CAPTCHA Фото Капча
Введіть символи, зображені на малюнку.

Схожі оголошення

  • Продаж квартири Берестейський просп. (Перемоги просп.) 121 в Києві / W-7421281 (Берестейський просп. (Перемоги просп.), 121) 7 188 000* грн.

    Продаж квартири Берестейський просп. (Перемоги просп.) 121 в Києві / W-7421281

  • Продаж квартири Берестейський просп. (Перемоги просп.) 67г в Києві / W-7344904 (Берестейський просп. (Перемоги просп.), 67г) 6 786 000* грн.

    Продаж квартири Берестейський просп. (Перемоги просп.) 67г в Києві / W-7344904

  • Продаж квартири Берестейський просп. (Перемоги просп.) 107 в Києві / W-7428513 (Берестейський просп. (Перемоги просп.), 107) 7 610 000* грн.

    Продаж квартири Берестейський просп. (Перемоги просп.) 107 в Києві / W-7428513

  • Продаж квартири Руденка Миколи бульв. (Кольцова бульв) 14к в Києві / R-57738 (Руденка Миколи бульв. (Кольцова бульв), 14к) 7 822 000* грн.

    Продаж квартири Руденка Миколи бульв. (Кольцова бульв) 14к в Києві / R-57738

  • Продаж квартири Руденка Миколи бульв. (Кольцова бульв) 14д в Києві / R-65888 (Руденка Миколи бульв. (Кольцова бульв), 14д) 7 493 000* грн.

    Продаж квартири Руденка Миколи бульв. (Кольцова бульв) 14д в Києві / R-65888

  • Продаж квартири Берестейський просп. (Перемоги просп.) 65б в новобудові в Києві / W-7291244 (Берестейський просп. (Перемоги просп.), 65б) 8 245 000* грн.

    Продаж квартири Берестейський просп. (Перемоги просп.) 65б в новобудові в Києві / W-7291244

  • Продаж квартири Берестейський просп. (Перемоги просп.) 67 в Києві / W-7409553 (Берестейський просп. (Перемоги просп.), 67) 8 245 000* грн.

    Продаж квартири Берестейський просп. (Перемоги просп.) 67 в Києві / W-7409553

  • Продаж квартири Берестейський просп. (Перемоги просп.) 121а в Києві / P-33943 (Берестейський просп. (Перемоги просп.), 121а) 7 484 000* грн.

    Продаж квартири Берестейський просп. (Перемоги просп.) 121а в Києві / P-33943