Реєстрація /

Оренда Офіс вул. Антоновича Володимира (Горького) 72 в Києві / W-7425264

Комерційна нерухомість
Ціна:
65 000* грн.
/місяць
$
1 500 $ (1$ = 43.35 грн.)
1 270 € (1€ = 51.4 грн.)
К-сть кімнат:
6
Профіль:
Площа:
141 м²
Тип (серія) будинку:
спецпроект 2006-2010 рр.
Поверх:
8
Ціна за м²:
461 грн.
Ремонт (стан):
з євроремонтом
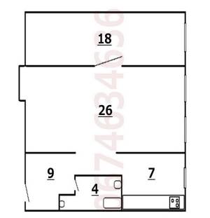
БЕЗ КОМИССИИ АРЕНДА СОВРЕМЕННОГО ОФИСА В ЦЕНТРЕ! - г. Киев, Центр, ул. Антоновича 72 (Горького), фасадный дом 2010 г.п.; - метро Олимпийская - 9 мин; - метро Дворец Украина - 12 мин; - вход в дом со двора через отличное парадное; - 8 этаж, лифты, жилой фонд; - аренда отличного офиса, помещения 141 м² без мебели; - холл-приемная, 4 отдельных кабинета + 2 кабинета (для архива, серверной и т.д.), мини-кухня, санузел, три балкона; - офисный ремонт, окна (стеклопакеты), кондиционеры, сигнализация; - 1500 у.е/месяц; - дополнительно коммунальные платежи по низким тарифам жилого фонда; +380674634636 Приглашаем к сотрудничеству собственников недвижимости Посмотреть другие предложения нажимайте на опцию "Все объявления пользователя"
Завантажити .pdf

Посередник

Мила

Оновлено: 3 Лютого 2026
Код об'єкта: W-7425264
CAPTCHA Фото Капча
Введіть символи, зображені на малюнку.

Поскаржитися на оголошення

W-7425264 |

Вкажіть причину скарги

Максимальна кількість символів 500
CAPTCHA Фото Капча
Введіть символи, зображені на малюнку.

Схожі оголошення

  • Оренда Нежитлове приміщення вул. Велика Васильківська (Червоноармійська) в Києві / D-36573 (Нежитлове приміщення, вул. Велика Васильківська (Червоноармійська)) 65 000* грн./місяць

    Оренда Нежитлове приміщення вул. Велика Васильківська (Червоноармійська) в Києві / D-36573

  • Оренда Офіс вул. Антоновича Володимира (Горького) в Києві / J-12996 (Офіс, вул. Антоновича Володимира (Горького)) 60 700* грн./місяць

    Оренда Офіс вул. Антоновича Володимира (Горького) в Києві / J-12996

  • Оренда Нежитлове приміщення вул. Малевича Казимира (Боженка) в Києві / P-33436 (Нежитлове приміщення, вул. Малевича Казимира (Боженка)) 60 000 грн./місяць

    Оренда Нежитлове приміщення вул. Малевича Казимира (Боженка) в Києві / P-33436

  • Оренда Нежитлове приміщення Голосіївський просп. (40-річчя Жовтня) в Києві / P-33332 (Нежитлове приміщення, Голосіївський просп. (40-річчя Жовтня)) 70 100 грн./місяць

    Оренда Нежитлове приміщення Голосіївський просп. (40-річчя Жовтня) в Києві / P-33332

  • Оренда Офіс вул. Антоновича Володимира (Горького) в Києві / H-20556 (Офіс, вул. Антоновича Володимира (Горького)) 60 700* грн./місяць

    Оренда Офіс вул. Антоновича Володимира (Горького) в Києві / H-20556

  • Оренда Нежитлове приміщення вул. Антоновича Володимира (Горького) в Києві / P-32616 (Нежитлове приміщення, вул. Антоновича Володимира (Горького)) 62 000 грн./місяць

    Оренда Нежитлове приміщення вул. Антоновича Володимира (Горького) в Києві / P-32616

  • Оренда Офіс вул. Антоновича Володимира (Горького) в Києві / H-46799 (Офіс, вул. Антоновича Володимира (Горького)) 59 600 грн./місяць

    Оренда Офіс вул. Антоновича Володимира (Горького) в Києві / H-46799

  • Оренда Офіс вул. Антоновича Володимира (Горького) 72 в Києві / W-7379505 (Офіс, вул. Антоновича Володимира (Горького)) 65 000* грн./місяць

    Оренда Офіс вул. Антоновича Володимира (Горького) 72 в Києві / W-7379505

  • Оренда Офіс вул. Антоновича Володимира (Горького) 44 в Києві / W-7433240 (Офіс, вул. Антоновича Володимира (Горького)) 65 000* грн./місяць

    Оренда Офіс вул. Антоновича Володимира (Горького) 44 в Києві / W-7433240

  • Оренда Офіс вул. Антоновича Володимира (Горького) 44 в Києві / W-7430758 (Офіс, вул. Антоновича Володимира (Горького)) 65 000* грн./місяць

    Оренда Офіс вул. Антоновича Володимира (Горького) 44 в Києві / W-7430758

  • Оренда Офіс вул. Малевича Казимира (Боженка) в Києві / W-7226625 (Офіс, вул. Малевича Казимира (Боженка)) 61 300 грн./місяць

    Оренда Офіс вул. Малевича Казимира (Боженка) в Києві / W-7226625

  • Оренда Офіс вул. Костанайська (Кустанайська) 13 в Києві / W-7387062 (Офіс, вул. Костанайська (Кустанайська)) 66 000 грн./місяць

    Оренда Офіс вул. Костанайська (Кустанайська) 13 в Києві / W-7387062