Реєстрація /

Оренда Офіс вул. Інститутська 24 в Києві / W-7422944

Комерційна нерухомість
Ціна:
30 000 грн.
/місяць
$
711 $ (1$ = 42.22 грн.)
609 € (1€ = 49.15 грн.)
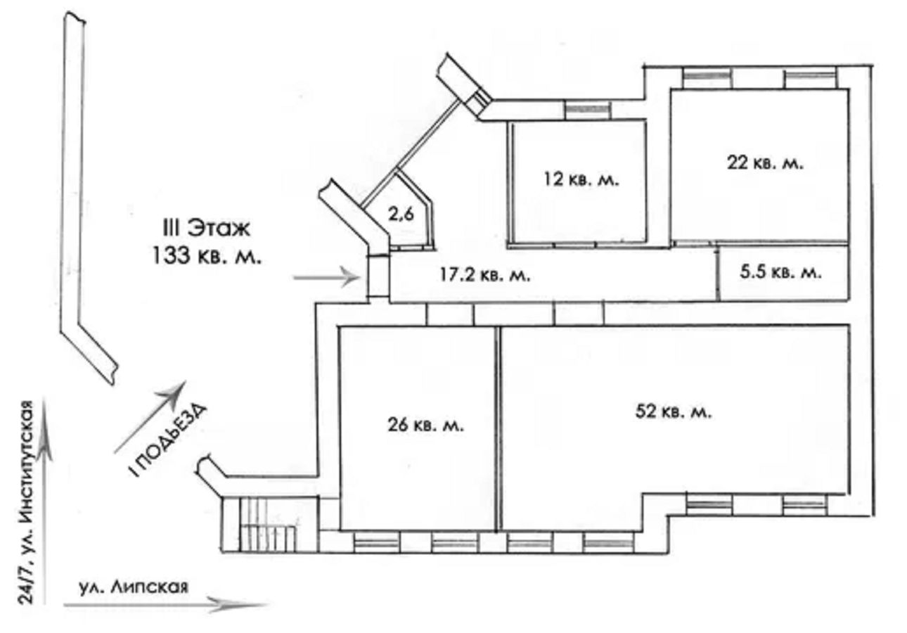
Арсенальна метро,вул Інституська 24\7, офіс 3 поверх ліфт,житловий фонд,133м добрий стан,кондіционер,4 кабінета,кухня, 2с\в. БЕЗ МЕБЛІВ, метро 10 хв.30000грн + комунальні.(Комісія 50%)
Завантажити .pdf

Посередник

Олександр

Оновлено: 19 Листопада 2025
Код об'єкта: W-7422944
CAPTCHA Фото Капча
Введіть символи, зображені на малюнку.

Поскаржитися на оголошення

W-7422944 |

Вкажіть причину скарги

Максимальна кількість символів 500
CAPTCHA Фото Капча
Введіть символи, зображені на малюнку.

Схожі оголошення