Реєстрація /

Продаж квартири вул. Гетьмана Скоропадського Павла (Толстого Льва) 39 в Києві / W-7418336

3-кімнатна квартира
Ціна:
16 950 000* грн.
$
390 000 $ (1$ = 43.45 грн.)
331 000 € (1€ = 51.2 грн.)
Житловий комплекс:
К-сть кімнат/Розташування:
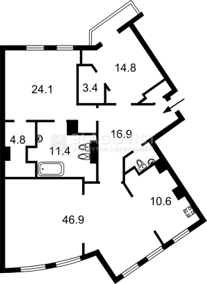
Площа (загальна/житлова/кухні):
136.3/85.8/10.6
Поверх/К-сть поверхів:
7/17
Тип (серія) будинку:
спецпроект 2006-2010 рр.
Матеріал стін:
Цегла
Матеріал підлоги:
Паркет
Матеріал перекриття:
Залізобетон
Кількість, тип санвузлів:
2, Сумісний
Парковка:
так
Ремонт (стан):
з євроремонтом
меблі
балкон
Київ, Гетьмана Скоропадського (Толстого Л.), 39, Граф Толстой; Спецпроект 2006-2010 рр; стіни: цегла; перекриття: залізобетон; поверховість: 17; кількість виходів: 2; гараж; транспорт: ст.М"Університет" - 10 хв.; Будинок 2009р., Н=3.0м. Перші три поверхи - нежитловий фонд. Закрита облаштована прибудинкова територія, що охороняється. Дитячий майданчик. Підземний паркінг. Ботанічний сад ім. аккадеміка О.В. Фоміна, Університет ім. Т.Г.Шевченка. Володимирський собор. Оперний театр, ТОЦ 101Тауер., ст.М "Вокзальна", ст.М "Університет", ст.М "пл. Л. Толстого", тролл.3,5,8,9,17,14. Авт 69. 3к р, 7-й поверх, площа: 136,3\85,8\10,6; Квартира в монолітно-каркасно-цегляному будинку ЖК Граф Толстой, клубна секція дві квартири на поверсі, хороший ремонт, вбудовані меблі на кухні, паркет, побутова техніка, під'їзд, що охороняється, консьєрж, кодовий замок, безкоштовна парковка, хороша інфраструктура і транспортна розв'язка.
Завантажити .pdf

Посередник

Єлизавета

Оновлено: 30 Січня 2026
Код об'єкта: W-7418336
CAPTCHA Фото Капча
Введіть символи, зображені на малюнку.

Поскаржитися на оголошення

W-7418336 |

Вкажіть причину скарги

Максимальна кількість символів 500
CAPTCHA Фото Капча
Введіть символи, зображені на малюнку.

Схожі оголошення

  • Продаж квартири вул. Жилянська 59 в Києві / H-46074 (вул. Жилянська, 59) 16 510 000* грн.

    Продаж квартири вул. Жилянська 59 в Києві / H-46074

  • Продаж квартири вул. Бредбері Рея (Дубініна Володі) 2 в Києві / W-7434674 (вул. Бредбері Рея (Дубініна Володі), 2) 16 950 000* грн.

    Продаж квартири вул. Бредбері Рея (Дубініна Володі) 2 в Києві / W-7434674

  • Продаж квартири вул. Гетьмана Скоропадського Павла (Толстого Льва) 23 в Києві / Q-28292 (вул. Гетьмана Скоропадського Павла (Толстого Льва), 23) 15 360 000* грн.

    Продаж квартири вул. Гетьмана Скоропадського Павла (Толстого Льва) 23 в Києві / Q-28292

  • Продаж квартири вул. Здановської Юлії (Ломоносова) 75а в Києві / M-37740 (вул. Здановської Юлії (Ломоносова), 75а) 15 640 000* грн.

    Продаж квартири вул. Здановської Юлії (Ломоносова) 75а в Києві / M-37740

  • Продаж квартири вул. Рудницького Степана (Вільямса Академіка) 3а в Києві / G-1902953 (вул. Рудницького Степана (Вільямса Академіка), 3а) 16 510 000* грн.

    Продаж квартири вул. Рудницького Степана (Вільямса Академіка) 3а в Києві / G-1902953

  • Продаж квартири вул. Антоновича Володимира (Горького) 4/6 в Києві / W-7276626 (вул. Антоновича Володимира (Горького), 4/6) 15 640 000* грн.

    Продаж квартири вул. Антоновича Володимира (Горького) 4/6 в Києві / W-7276626

  • Продаж квартири вул. Саксаганського 28 в Києві / L-31486 (вул. Саксаганського, 28) 18 470 000* грн.

    Продаж квартири вул. Саксаганського 28 в Києві / L-31486

  • Продаж квартири вул. Бредбері Рея (Дубініна Володі) 2 в Києві / B-109493 (вул. Бредбері Рея (Дубініна Володі), 2) 16 950 000* грн.

    Продаж квартири вул. Бредбері Рея (Дубініна Володі) 2 в Києві / B-109493

  • Продаж квартири вул. Антоновича Володимира (Горького) 10 в Києві / E-14530 (вул. Антоновича Володимира (Горького), 10) 16 510 000* грн.

    Продаж квартири вул. Антоновича Володимира (Горького) 10 в Києві / E-14530

  • Продаж квартири вул. Антоновича Володимира (Горького) 44 в Києві / Q-16858 (вул. Антоновича Володимира (Горького), 44) 16 510 000* грн.

    Продаж квартири вул. Антоновича Володимира (Горького) 44 в Києві / Q-16858

  • Продаж квартири вул. Здановської Юлії (Ломоносова) 73г в Києві / R-59605 (вул. Здановської Юлії (Ломоносова), 73г) 16 080 000* грн.

    Продаж квартири вул. Здановської Юлії (Ломоносова) 73г в Києві / R-59605

  • Продаж квартири вул. Антоновича Володимира (Горького) 44 в Києві / I-37594 (вул. Антоновича Володимира (Горького), 44) 18 470 000* грн.

    Продаж квартири вул. Антоновича Володимира (Горького) 44 в Києві / I-37594