Реєстрація /

Оренда Ресторан Бажана Миколи просп. 17 в Києві / W-7418041

Комерційна нерухомість
Ціна:
315 000 грн.
/місяць
$
7 470 $ (1$ = 42.2 грн.)
6 390 € (1€ = 49.35 грн.)
Профіль:
Площа:
700 м²
Ціна за м²:
450 грн.
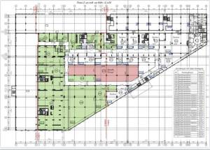
БЕЗ КОМІСІЇ! Оренда приміщень 700м² під заклади громадського харчування, ресторан, кафе, їдальня, в ТЦ OLYMPIC CENTR, за адресою вул. Миколи Бажана, 17, станція метро Бориспільська. Можливі індивідуальні умови оренди та коригування планування і метраж площ, відповідно до потреб клієнта. Стан: плитка на підлозі, штукатурка стін, вентиляція та підводка мокрих точок, забезпечення потужністю кВт. Надаємо ремонтні канікули. Відкриті планування або можливість зонування. Високі стелі 4-5м. Окремі входи для частини приміщень. Великий паркінг біля ТЦ. ВАКАНТНІ ПЛОЩІі : - 1062м² , 230м² - цоколь, кілька внутрішніх входів, поряд Аврора. - 256м² , 22м² - 1 поверх, прохідне, поруч із АТБ. - 700м², 107м², 300м², 500м² , 635м² 187м², 905м² - 2 поверх поруч із Sinsay. КОМЕРЦІЙНІ УМОВИ: цоколь - 350грн./м² плюс комунальні. 1 поверх - 500грн./м² плюс комунальні. 2 поверх - 450грн./ м² плюс комунальні. Паркомісце: 1500грн./місяць
Завантажити .pdf

Посередник

Тетяна

Оновлено: 27 Жовтня 2025
Код об'єкта: W-7418041
CAPTCHA Фото Капча
Введіть символи, зображені на малюнку.

Поскаржитися на оголошення

W-7418041 |

Вкажіть причину скарги

Максимальна кількість символів 500
CAPTCHA Фото Капча
Введіть символи, зображені на малюнку.

Схожі оголошення