Реєстрація /

Оренда Офіс вул. Болсунівська (Струтинського Сергія) в Києві / W-7418023

Комерційна нерухомість
Ціна:
61 800 грн.
/місяць
$
1 420 $ (1$ = 43.39 грн.)
1 200 € (1€ = 51.55 грн.)
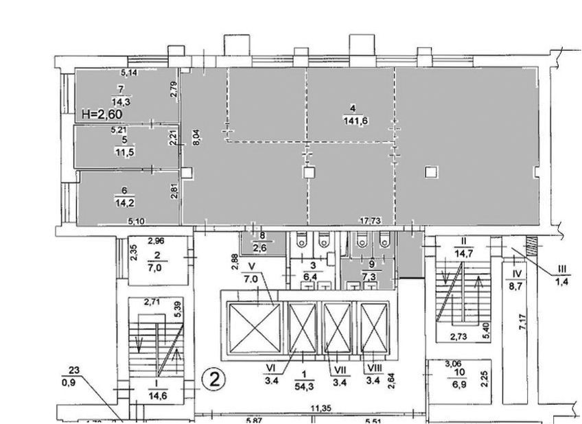
% Від власника (без комісійних) Печерськ. Метро Звіринецька. Автономний офіс у бізнес-центрі на Печерську. Кабінетний формат (окремий блок). Площа приміщення 193м2. Можливе зменшення та збільшення площі. Презентабельний фасад та хол, ліфти, пропускна система, ремонт. Фінансові умови - 320 грн/м2 (з ПДВ) + комунальні та експлуатаційні послуги. Можливість встановити генератор. Метро Звіринецька у пішій досяжності. Звертайтесь для узгодження перегляду. BC00408
Завантажити .pdf

Посередник

Відділ оренди

Оновлено: 17 Лютого 2026
Код об'єкта: W-7418023
CAPTCHA Фото Капча
Введіть символи, зображені на малюнку.

Поскаржитися на оголошення

W-7418023 |

Вкажіть причину скарги

Максимальна кількість символів 500
CAPTCHA Фото Капча
Введіть символи, зображені на малюнку.

Схожі оголошення