Реєстрація /

Оренда Офіс вул. Межигірська 87 в Києві / W-7416991

Комерційна нерухомість
Ціна:
6 000 грн.
/місяць
$
142 $ (1$ = 42.1 грн.)
122 € (1€ = 49 грн.)
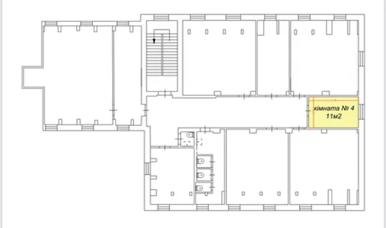
Поділ,вул Межигірська 87А, офіс 4 поверх,не житловий фонд,1 кабінет 11м гарний стан,кондіционер,метро Т Шевченко 3хв.6000грн у вартість входять усі комунальні послуги.(Комісія 50%)
Завантажити .pdf

Посередник

Олександр

Оновлено: 24 Жовтня 2025
Код об'єкта: W-7416991
CAPTCHA Фото Капча
Введіть символи, зображені на малюнку.

Поскаржитися на оголошення

W-7416991 |

Вкажіть причину скарги

Максимальна кількість символів 500
CAPTCHA Фото Капча
Введіть символи, зображені на малюнку.

Схожі оголошення