Реєстрація /

Оренда Бізнес-центр вул. Міхновського Миколи бульвар (Дружби Народів бульвар) 16/1 в Києві / W-7415507

Комерційна нерухомість
Ціна:
1 825 000* грн.
/місяць
$
43 000 $ (1$ = 42.45 грн.)
37 000 € (1€ = 49.35 грн.)
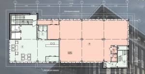
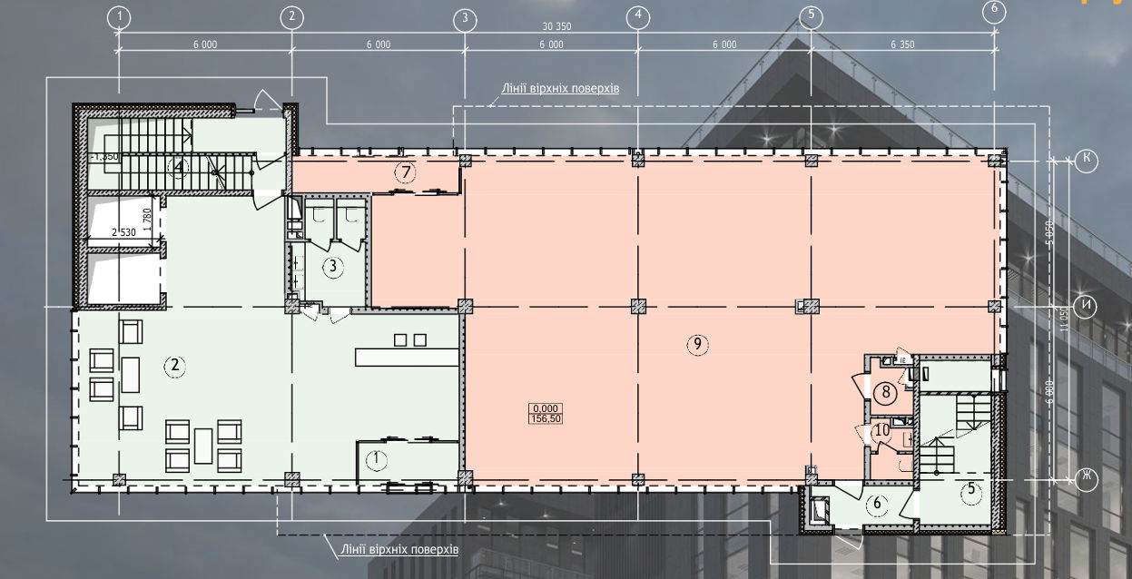
Оренда 8 поверхів у бізнес-центрі | 3586 м², бул. Миколи Міхновського, 16/1, Київ Без комісії — напряму від власника! Ідеально для великого офісу, IT-компанії, навчального центру або клініки Ви шукаєте простір, який можна адаптувати саме під ваш проєкт? Тоді це саме те, що потрібно! Загальна площа — 3586 м²: – 7 окремих поверхів у сучасній адміністративній будівлі – Формат shell & core — ідеально для реалізації індивідуального планування – Поверхи можна використовувати як окремі зони або з’єднати в єдиний простір – Плани поверхів — доступні для перегляду Важливо: – Власна парковка для співробітників та клієнтів – Окремий вхід — іміджеве рішення для вашої компанії – Додатково — ремонтні канікули, щоб облаштувати все з нуля і без стресу Локація — ключова перевага: – 5 хвилин пішки до метро Звіринецька – Діловий центр столиці з розвиненою інфраструктурою – Поруч великі офіси, банки, кав’ярні, держустанови — усе для зручної роботи
Завантажити .pdf

Посередник

Alan

Оновлено: 28 Листопада 2025
Код об'єкта: W-7415507
CAPTCHA Фото Капча
Введіть символи, зображені на малюнку.

Поскаржитися на оголошення

W-7415507 |

Вкажіть причину скарги

Максимальна кількість символів 500
CAPTCHA Фото Капча
Введіть символи, зображені на малюнку.

Схожі оголошення