Реєстрація /

Оренда Офіс вул. Сверстюка Євгена (Раскової Марини) 2а в Києві / W-7415097

Комерційна нерухомість
Ціна:
79 500 грн.
/місяць
$
1 880 $ (1$ = 42.2 грн.)
1 630 € (1€ = 48.75 грн.)
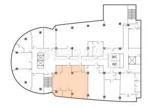
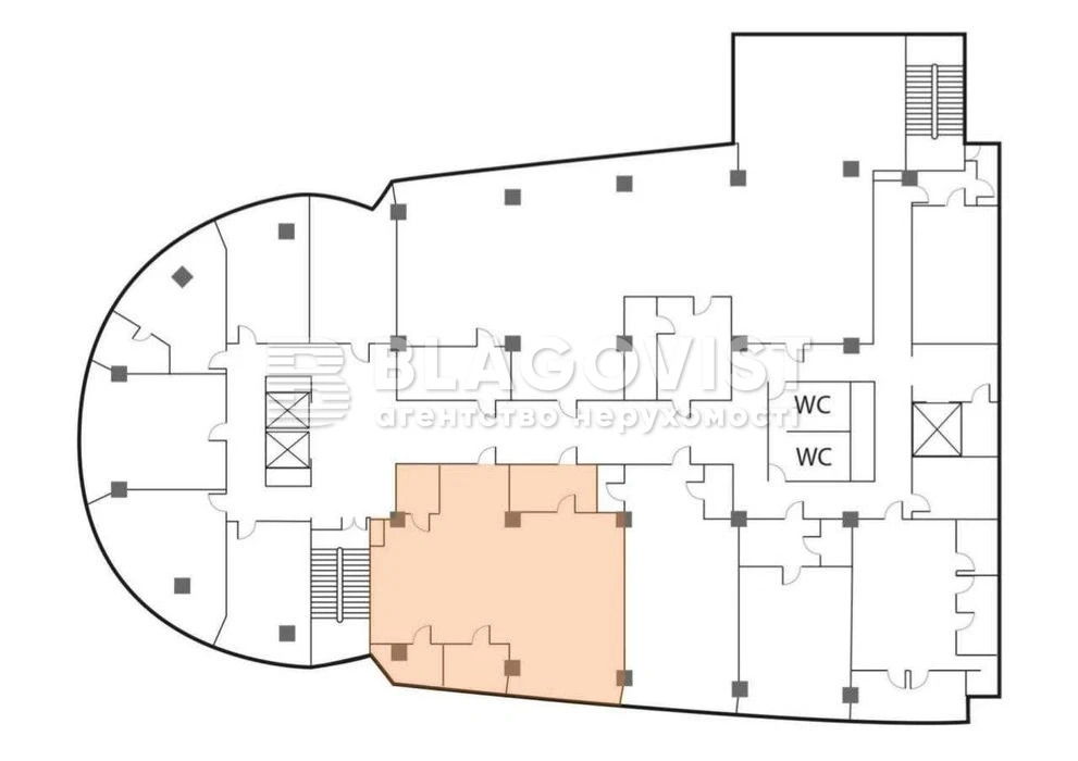
Офісне приміщення 132кв.м біля метро Лівобережна сучасний бізнес центр з підземним паркінгом вулиця Сверстюка Євгена (Раскової Марини), 2а нова будівля, 2 ліфти, генератор, охорона біля дороги, перша лінія Офіс, 5-й поверх сучасний ремонт, є вентиляція, кондиціонування, відеоспостереження та цілодобова охорона Планування: кабінетне та open space, кухня Приміщення здається частково з меблями Оптоволоконний високошвидкісний інтернет Підземний паркінг працює, як укриття. Є можливість додатково орендувати необхідну кількість паркомісць Ціна: 79 428 грн/місяць
Завантажити .pdf

Посередник

Світлана

Оновлено: 4 Листопада 2025
Код об'єкта: W-7415097
CAPTCHA Фото Капча
Введіть символи, зображені на малюнку.

Поскаржитися на оголошення

W-7415097 |

Вкажіть причину скарги

Максимальна кількість символів 500
CAPTCHA Фото Капча
Введіть символи, зображені на малюнку.

Схожі оголошення