Реєстрація /

Оренда Кафе вул. Хвойки Вікентія 21 в Києві / W-7414914

Комерційна нерухомість
Ціна:
32 000 грн.
/місяць
$
723 $ (1$ = 44.3 грн.)
611 € (1€ = 52.25 грн.)
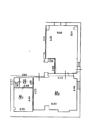
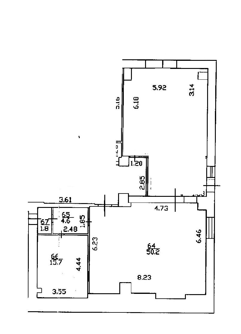
Пропонуємо в оренду приміщення під кафе площею 128 м ², на 1 поверсі, 2 прохідні. У приміщенні 2 великі зали, кухня. Ремонт: на підлозі плитка, стіни пофарбовані, металопластикові вікна, стелі підвісні Армстронг. Є мокра точка, витяжка. Вартість 250 грн/м2. Розташування: Київ, Почайна, вул. В. Хвойки, 21, БЦ "Веста". Телефонуйте! Будемо раді підібрати вам відповідний варіант!
Завантажити .pdf

Посередник

Оновлено: 17 Квітня 2026
Код об'єкта: W-7414914
CAPTCHA Фото Капча
Введіть символи, зображені на малюнку.

Поскаржитися на оголошення

W-7414914 |

Вкажіть причину скарги

Максимальна кількість символів 500
CAPTCHA Фото Капча
Введіть символи, зображені на малюнку.

Схожі оголошення

  • Оренда Офіс Івасюка Володимира просп. (Героїв Сталінграда просп.) 2 в Києві / W-7447028 (Офіс, Івасюка Володимира просп. (Героїв Сталінграда просп.)) 30 000 грн./місяць

    Оренда Офіс Івасюка Володимира просп. (Героїв Сталінграда просп.) 2 в Києві / W-7447028

  • Оренда Офіс вул. Куренівська 21 в Києві / W-7424946 (Офіс, вул. Куренівська) 35 000 грн./місяць

    Оренда Офіс вул. Куренівська 21 в Києві / W-7424946

  • Оренда Нежитлове приміщення вул. Йорданська (Гавро Лайоша) 14а в Києві / W-7440560 (Нежитлове приміщення, вул. Йорданська (Гавро Лайоша)) 35 000 грн./місяць

    Оренда Нежитлове приміщення вул. Йорданська (Гавро Лайоша) 14а в Києві / W-7440560