Реєстрація /

Оренда Офіс Спортивна пл. 3 в Києві / W-7414361

Комерційна нерухомість
Ціна:
284 000* грн.
/місяць
$
6 500 $ (1$ = 43.75 грн.)
5 580 € (1€ = 50.95 грн.)
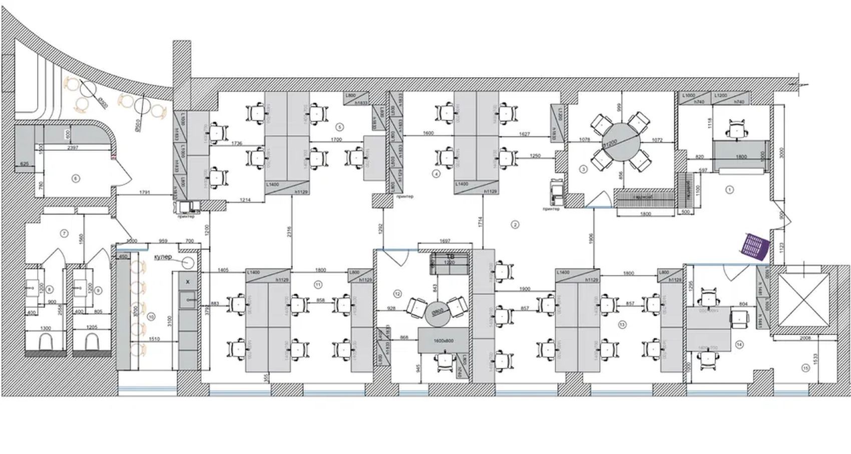
Довгострокова оренда дуже гарного, автономного, зручного та унікального офісу Адреса: м. Київ, Спортивна площа 3 «В» ( метро Палац Спорту ) Комерційні умови: 2-й поверх (офіс 210м2 + МЗК 45,4м2) – один офіс на поверх. 3 паркомісця включені у вартість (2 на закритій території + 1 у підземному паркінгу) Орендна ставка 6500 $/міс Експлуатаційні витрати 21252 грн/міс з ПДВ Комунальні по факту споживання за лічильниками з ПДВ Автономне електроживлення (потужний дизель генератор + 2 окремих вводи) Бомбосховище Також наявний офіс поверхом вище 247м2 ( можна обʼєднати 2й та 3й поверхи - загальна площа 457м2) 2-й поверх (офіс 210м2 + МЗК 45,4м2) – один офіс на поверх. 3 паркомісця включені у вартість (2 на закритій території + 1 у підземному паркінгу) Орендна ставка 6500 $/міс Експлуатаційні витрати 21252 грн/міс з ПДВ Комунальні по факту споживання за лічильниками з ПДВ
Завантажити .pdf

Посередник

Юрій

Оновлено: 4 Березня 2026
Код об'єкта: W-7414361
CAPTCHA Фото Капча
Введіть символи, зображені на малюнку.

Поскаржитися на оголошення

W-7414361 |

Вкажіть причину скарги

Максимальна кількість символів 500
CAPTCHA Фото Капча
Введіть символи, зображені на малюнку.

Схожі оголошення