Реєстрація /

Оренда Офіс Спортивна пл. 3 в Києві / W-7412721

Комерційна нерухомість
Ціна:
224 000* грн.
/місяць
$
5 300 $ (1$ = 42.2 грн.)
4 550 € (1€ = 49.2 грн.)
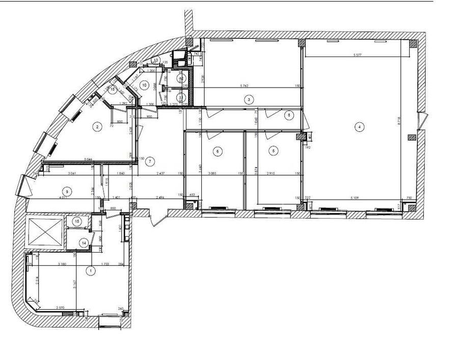
Предлагаем в аренду офис,  (нежилой фонд) площадью 240 м2,  в бизнес центре класса А Установлены новые энергосберегающие окна, автономная система вентиляции VTS и подогрев воды. Центр Киева, по адресу площадь Спортивная 3 , 2й этаж. Рядом метро Дворец Спорта и ТК Гулливер. 6 рабочих кабинетов, серверная,  2 санузла, кухня с выходом на собственную террасу. Высота потолка 3 м.  Офис комбинированного типа, open space  - 60 кв.м. и 5-ть отдельных кабинетов (14 кв.м., 14 кв.м., 15 кв.м.,  24 кв.м., 24 кв.м.) В стоимость аренды входит 2 парко-места на паркинге БЦ. Выполнена сетевая разводка, разводка под сигнализацию и видеонаблюдение. Пожарная сигнализация с выводом на пульт охраны. Охраняемая территория бизнес центра. Сдается без мебели, укомплектована только кухня. Предоставляется готовый дизайн-проект офиса. Возможность регистрации юридического адреса. Стоимость аренды  - 5300 USD 50 комісія
Завантажити .pdf

Посередник

Ярослав

Оновлено: 14 Листопада 2025
Код об'єкта: W-7412721
CAPTCHA Фото Капча
Введіть символи, зображені на малюнку.

Поскаржитися на оголошення

W-7412721 |

Вкажіть причину скарги

Максимальна кількість символів 500
CAPTCHA Фото Капча
Введіть символи, зображені на малюнку.

Схожі оголошення