Реєстрація /

Продаж квартири вул. Котарбінського Вільгельма (Кравченка М.) 24 в Києві / W-7412466

1-кімнатна квартира
Ціна:
6 239 000* грн.
$
145 000 $ (1$ = 43.1 грн.)
120 000 € (1€ = 51.8 грн.)
Житловий комплекс:
К-сть кімнат/Розташування:
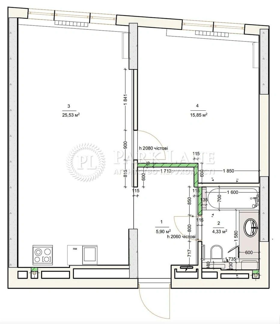
Площа (загальна/житлова/кухні):
52/16/26
Поверх/К-сть поверхів:
12/26
Тип (серія) будинку:
Спецпроект 2021-2025 рр
Матеріал стін:
Цегла
Тип санвузла:
Сумісний
Ремонт (стан):
з євроремонтом
меблі
Пропонується до продажу нова 1-кімнатна квартира (євродвушка) у житловому комплексі «СТАРТ». Світло є завжди, працюють 3 ліфти. Квартира з сучасним та якісним ремонтом, розташована на 12-му поверсі 26-поверхового будинку з гарним краєвидом у двір та на стадіон. Панорамні вікна. Загальна площа — 51,7 м: простора кухня-вітальня — 25,53 м, спальня — 15,85 м, ванна кімната — 4,42 м, (з ванною та душем), передпокій — 5,9 м. Висота стелі — 2,75 м. Покриття підлоги: у спальні та кухні-вітальні — вінілова. Метро в пішій доступності
Завантажити .pdf

Посередник

Лілія

Оновлено: 26 Січня 2026
Код об'єкта: W-7412466
CAPTCHA Фото Капча
Введіть символи, зображені на малюнку.

Поскаржитися на оголошення

W-7412466 |

Вкажіть причину скарги

Максимальна кількість символів 500
CAPTCHA Фото Капча
Введіть символи, зображені на малюнку.

Схожі оголошення

  • Продаж квартири Берестейський просп. (Перемоги просп.) 11-1 в новобудові в Києві / W-7431083 (Берестейський просп. (Перемоги просп.), 11-1) 5 862 000* грн.

    Продаж квартири Берестейський просп. (Перемоги просп.) 11-1 в новобудові в Києві / W-7431083

  • Продаж квартири вул. Глибочицька 43 корпус 1 в Києві / P-31712 (вул. Глибочицька, 43 корпус 1) 5 646 000* грн.

    Продаж квартири вул. Глибочицька 43 корпус 1 в Києві / P-31712

  • Продаж квартири Берестейський просп. (Перемоги просп.) 11 в Києві / W-7416593 (Берестейський просп. (Перемоги просп.), 11) 6 163 000* грн.

    Продаж квартири Берестейський просп. (Перемоги просп.) 11 в Києві / W-7416593

  • Продаж квартири вул. Тираспольська 52 в Києві / W-7410283 (вул. Тираспольська, 52) 5 819 000* грн.

    Продаж квартири вул. Тираспольська 52 в Києві / W-7410283

  • Продаж квартири Берестейський просп. (Перемоги просп.) 11 в Києві / W-7411156 (Берестейський просп. (Перемоги просп.), 11) 5 775 000* грн.

    Продаж квартири Берестейський просп. (Перемоги просп.) 11 в Києві / W-7411156

  • Продаж квартири вул. Ґарета Джонса (Хохлових Сім'ї) 8 корпус а06 в Києві / Q-20326 (вул. Ґарета Джонса (Хохлових Сім'ї), 8 корпус а06) 6 422 000* грн.

    Продаж квартири вул. Ґарета Джонса (Хохлових Сім'ї) 8 корпус а06 в Києві / Q-20326

  • Продаж квартири вул. Тираспольська 58 в Києві / W-7401487 (вул. Тираспольська, 58) 5 818 000* грн.

    Продаж квартири вул. Тираспольська 58 в Києві / W-7401487

  • Продаж квартири вул. Глибочицька 43 корпус 2 в Києві / G-834080 (вул. Глибочицька, 43 корпус 2) 5 819 000* грн.

    Продаж квартири вул. Глибочицька 43 корпус 2 в Києві / G-834080

  • Продаж квартири Берестейський просп. (Перемоги просп.) 11 корпус 1 в Києві / Q-29775 (Берестейський просп. (Перемоги просп.), 11 корпус 1) 5 862 000* грн.

    Продаж квартири Берестейський просп. (Перемоги просп.) 11 корпус 1 в Києві / Q-29775

  • Продаж квартири вул. Глибочицька 73 в Києві / G-2003350 (вул. Глибочицька, 73) 6 034 000* грн.

    Продаж квартири вул. Глибочицька 73 в Києві / G-2003350

  • Продаж квартири вул. Ґарета Джонса (Хохлових Сім'ї) 12 в Києві / W-7354741 (вул. Ґарета Джонса (Хохлових Сім'ї), 12) 6 681 000* грн.

    Продаж квартири вул. Ґарета Джонса (Хохлових Сім'ї) 12 в Києві / W-7354741

  • Продаж квартири вул. Дегтярівська 17 корпус 1 в новобудові в Києві / W-7413060 (вул. Дегтярівська, 17 корпус 1) 6 681 000* грн.

    Продаж квартири вул. Дегтярівська 17 корпус 1 в новобудові в Києві / W-7413060